EasyManua.ls Logo

DITEC ENTREMATIC HA9 - Double Egress Header Configuration

DITEC ENTREMATIC HA9
58 pages
Print Icon
To Next Page IconTo Next Page
To Next Page IconTo Next Page
To Previous Page IconTo Previous Page
To Previous Page IconTo Previous Page
Loading...
Entrematic Canada Inc.
Toll Free: 1-877-348-6837
info.ditec.ca@entrematic.com
www.ditecentrematic.ca
Entrematic USA Inc.
Toll Free: 1-866-901-4284
info.ditec.us@entrematic.com
www.ditecentrematic.us
Pg. 22
HA9 Manual V. 1.3
1019956
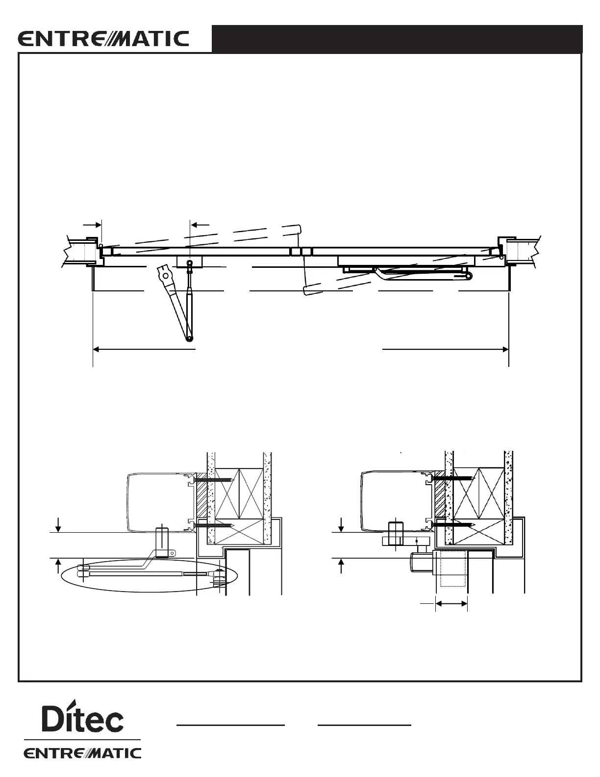
2.4 Double Egress Header
Double Egress Operators have a PULL type and PUSH type operator in the same housing, the header must be mounted
using the same process as the single Pull type locating 1 ⅜” (38mm) above the door frame and the spindle center 8¼“
(210mm) from the door hinge/pivot. For PUSH type operator, arm clearance issues may arise. To ensure the arm clears
any existing doorstops, use Option 2 Alternate Configuration to mount the arm as shown in the diagram below.
See Section 3.1 to change the Push arm configuration to Option 2.
Horizontal Section
Vertical Section
Push Pull
2.0 OPERATOR INSTALLATION
Door Opening Width + 3” (76mm)
8¼“ (210mm)
1 ⅜” (35mm)
1 ⅜” (35mm)
Option 2
0-2 ⅜” (0-60mm) Reveal

Related product manuals