EasyManua.ls Logo

DITEC ENTREMATIC HA9 - Arm Installation; Push Arm Components and Configurations

DITEC ENTREMATIC HA9
58 pages
Print Icon
To Next Page IconTo Next Page
To Next Page IconTo Next Page
To Previous Page IconTo Previous Page
To Previous Page IconTo Previous Page
Loading...
Entrematic Canada Inc.
Toll Free: 1-877-348-6837
info.ditec.ca@entrematic.com
www.ditecentrematic.ca
Entrematic USA Inc.
Toll Free: 1-866-901-4284
info.ditec.us@entrematic.com
www.ditecentrematic.us
Pg. 28
HA9 Manual V. 1.3
1019956
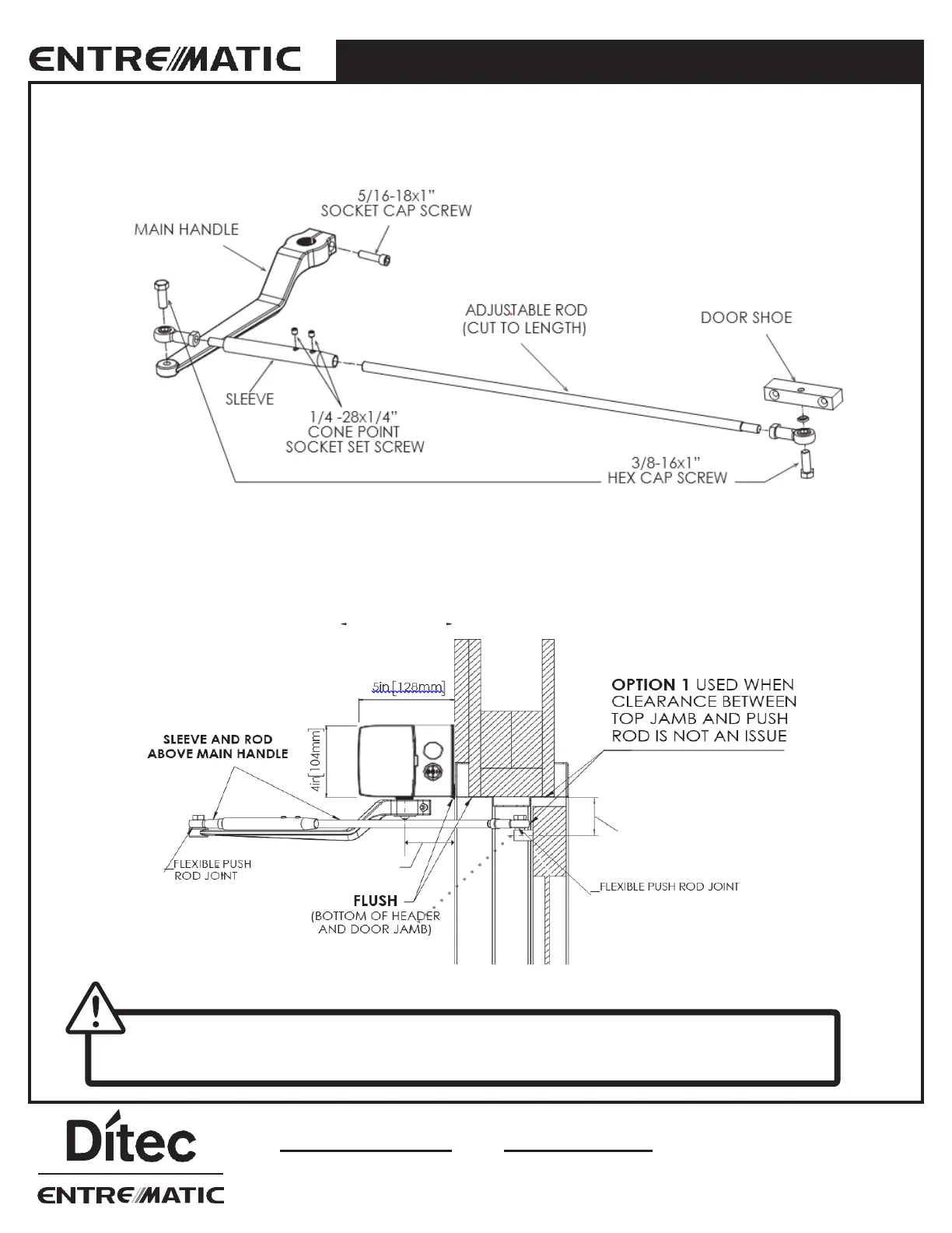
3.1 Push Arm Components & Configurations
The main arm components will consist of the Main Handle, Sleeve, Adjustable Rod (cut to length), and Door Shoe,
As shown below.
There are two (2) configurations available depends on situation and/or applications
Option 1- Standard Configuration
This is the standard configuration for the push arm, the Sleeve and Rod are above the Main Handle. Use this configuration
when there is no issue with clearance between the Rod/Door Shoe and top jamb of the door frame. The Rod and Sleeve
are flexible at the ends where they are bolted (semi-ball joint) which will provide additional flexibility during install.
WARNING!
Please ensure Shoe Bolts at these joints are tightened after installation of arm is complete.
3.0 ARM INSTALLATION
2.6in [ 66mm ]
2 7/8in [ 73mm ]

Related product manuals