EasyManua.ls Logo

Escea DX1000 - A3 Product Dimensions

Escea DX1000
57 pages
Print Icon
To Next Page IconTo Next Page
To Next Page IconTo Next Page
To Previous Page IconTo Previous Page
To Previous Page IconTo Previous Page
Loading...
B
ACDEFGSERVICE
9
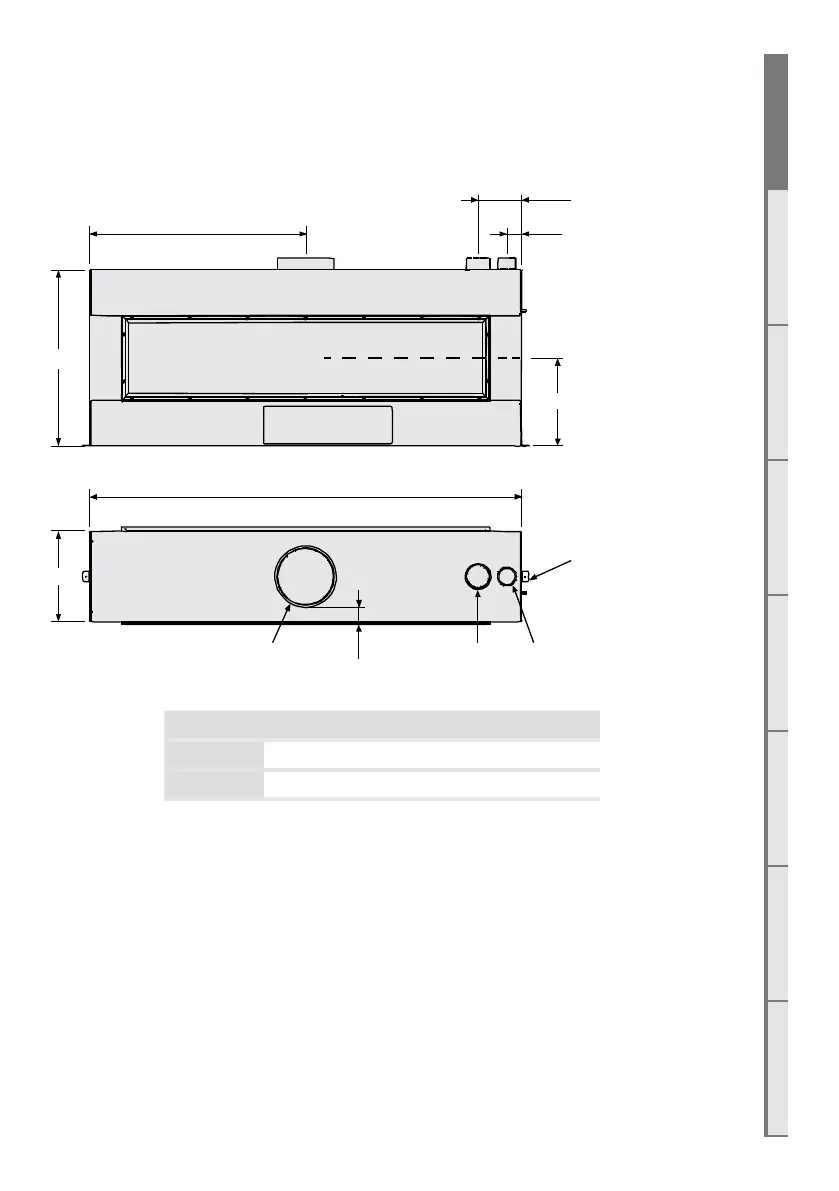
A3 Product Dimensions
NOT TO BE MISTAKEN FOR CAVITY DIMENSIONS.
All dimensions are in mm.
61
183
A
744
B
382
70 Ø100
Ø75
Ø250
372
Gas, Pow er, Intern et
Connections
For more detail, view architectural drawings at www.escea.com
DX1000 DX1500
A 664mm 914mm
B 1328mm 1828mm

Table of Contents

Other manuals for Escea DX1000

Related product manuals