EasyManua.ls Logo

EVOCA Krea Touch - Page 87

EVOCA Krea Touch
92 pages
Print Icon
To Next Page IconTo Next Page
To Next Page IconTo Next Page
To Previous Page IconTo Previous Page
To Previous Page IconTo Previous Page
Loading...
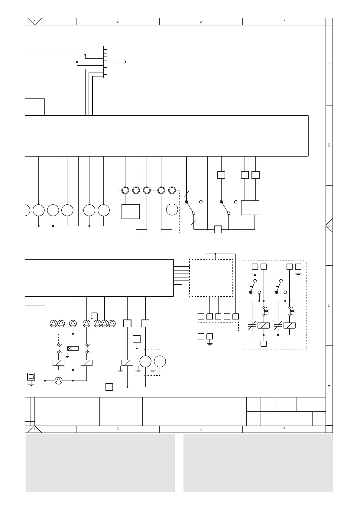
VAR VARISTOR
VENT FAN
MMA1-. GRINDINGREGULATIONMOTOR
NTC TEMPERATURE PROBE
PM PUMP
PS1-.. SYRUPBUTTON
RCC COFFEE BOILER HEATING ELEMENT
SAL VOLTAGE SUPPLY BOARD
SM1 CONTROL BOARD
SM2 EXPANSIONBOARD
STRC1 BOILER HEATING TRIAC BOARD
TX.... DELAYEDFUSE(X=CURRENT)
UPS COLD UNIT BOARD
L2 U1
N4 U3
45
FA
L
N
F 120V
N 120V
120V
6
6 6
11
1 1
6
SM1
6
CN29
SUC
9
J3
0
P4A1
3
VENT
J15
8
3
1
2
+
-
6
90
J15
9
2
J9
10
3
J9
3
IPF
J9
13
F120V
1
J10
1
8 5
1
PS1
7
3
PS2
4 9
7
3
7
5
KS
VAR
PM
PM
KS
VAR
SCIROPPI
10 80
7 0
SM2
1
J1
93
2
J2
2
J2
3
97
3
J2
4
87
6
J2
5
70
1
6
7 9
1
8
5
N 120V
F 120V
J2
1
1
UPS/SCIROPPI
4
J15
5
91
IVA
J9
4
J11
1
J11
4
2
2
SM1
1
26
8
J17
5
NTC
60
GND
OUT
1
3
2
CV
+12V
82
14
J9
11
70
J17
1
J17
2
J2
J1
1
2
3
2
1
STRC
3
2
45
F 120V
N 120V
RCC
KC1
KC2
3
2
5
5
J10
9
J10
4
PM
MAC
7
J10
8
ESC
5
4
J10
7
8
3(3) 3(5)3(4)3(1)
82
6
9(6)
6
J16
1
MD1
+
-
MD2
+
-
MD3
+
-
J12
2
2
J12
3
70
J12
4
60
J12
5
71
MF1
+
-
3
J13
7
MF2
+
-
J13
8
8
J13
1
2
MD6
+
-
MD5
+
-
J12
8
28
J12
7
91
J12
1
2 1
J15
2
2
P4A1
1
4
5
7
8
1
2
3
2
2
0
0
5
9
1
3 4
5
1
KS1
5
PM
EEA
KS3
3(2)
6
J10
3
2
J9
12
13
2
J17
4
7
0
4
1
M
+
-
1
53
J14
4
5
4
J14
2
8
2
OUT +5V
GND
ICM
CM
93
J8
6
ID
7
J8
1
ID
GND
+12V
OUT
1
3
2
80
J8
5
2
J8
11
J14
1
J14
5
EV1
9
EV2
91
EV3
6
J13
3
J13
4
J13
5
J13
6
J13
2
9 96 6 7
+ + +
15432
J15
4
J15
3
+
-
MMA1
91 6
7
+
ER
5 7 6
J14
3
6
10
9 5
0
J8
13
8
79
79
28
7
8 1
1
20
12
9
1
2
3
0
1
4158 9
0
8
J12
6
-
+
MD4
VENT
1
2
+
-
6
2
90
J15
9
3
J15
8
3 90
*
*
*
*
*
*
*
EV4
11
+
8
J15
7
8
10
1 3 8
13
14
6
5
MDte
5
+24Vdc
GND
J9
5
IPB
9
7
7
10
J1
SAL
3
2
1
45
6
1
J2-
6/10
J2+
1/5
24Vdc
1 2
0
2
IPS
IPS
1
IG
IG
R
R
R
R
A3
T
h
is drawing contains confidential information and is
the property of the
holding company of N&W or one of its
subsidiaries,without whose permission it may not be
copiedor discosed to third parties of otherwise used.
This drawing has to be returned promptly upon request
to N&W.
6
9
8
7
5
4
3
2
1
0
6
9
8
7
5
4
3
2
1
0
6
9
8
7
5
4
3
2
1
0
6
9
8
7
5
4
3
2
1
0
6
9
8
7
5
4
3
2
1
0
LEGENDA
CHECKEDPREPAREDSHEETDATE
DEFINITIONMODEL
BLANCO
GRIS
ROSA
ROSA
AZUL CLARO
OSCURO
VERDE
AMARILLO
NARANJA
ROJO
MARRON
NEGRO
WEISS
GRAU
LILLA
ROSA
HELLBLAU
BLAU
GRUEN
GELB
ORANGE
ROT
BRAUN
SCHWARZ
BLANC
GRIS
ROSE
ROSE
BLEU CIEL
BLEU
VERT
JAUNE
ORANGE
ROUGE
MARRON
NOIR
WHITE
GREY
VIOLET
PINK
LIGHT BLUE
BLUE
GREEN
YELLOW
ORANGE
RED
BROWN
BLACK
BIANCO
GRIGIO
VIOLA
ROSA
AZZURRO
BLU
VERDE
GIALLO
ARANCIO
ROSSO
MARRONE
NERO
1/1
VERSIONPART NUMBER
KREA
-
SCHEMA ELETTRICO KREA
TOUCH USA
26/10/2017
608612000
FOSSATI
LIBERALI
-
SCHEMA ELETTRICO
WIRING DIAGRAM

Table of Contents

Related product manuals