EasyManua.ls Logo

Festo CPX-FB13 - Page 75

Festo CPX-FB13
166 pages
Print Icon
To Next Page IconTo Next Page
To Next Page IconTo Next Page
To Previous Page IconTo Previous Page
To Previous Page IconTo Previous Page
Loading...
2. Commissioning
2−35
Festo P.BE−CPX−FB13−EN en 0811c
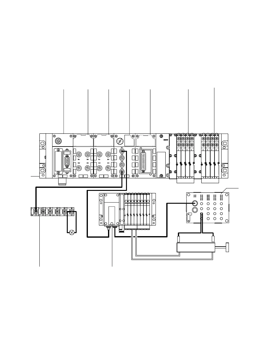
Addressing example 3: CPX terminal with CP interface
Addresses used as from input/output word 42:
1234 5 6
Module no.:
0
8 O8 O
1
23
4
8DI
4DO
8DI
8DO
String 4
String 1
String 1
Status bits:
I42.0 ... I42.7
42.0 ... O42.3
I43.0 ... I43.7
I44.0 ... I47.7
O43.0 ... O58.7
I48.0 ... I48.7
O59.0 ... O59.7
O60.0 ... O60.9
O61.0 ... O61.9
1 CPX terminal with CP interface
(module no. 3) and MPA pneumatics
2 CP−CL output module at CP string 4
(last string used for outputs;
therefore 16 byte outputs)
3 MPA−CPI valve terminal on CP string 1
4 CP−CL input module at CP string 1
(last string used for inputs;
therefore 4 byte inputs)
Fig.2/11: Addressing the example terminal 3 (see also Fig.2/4)

Table of Contents

Other manuals for Festo CPX-FB13

Related product manuals