EasyManua.ls Logo

Festo FB13 - Page 133

Festo FB13
195 pages
Print Icon
To Next Page IconTo Next Page
To Next Page IconTo Next Page
To Previous Page IconTo Previous Page
To Previous Page IconTo Previous Page
Loading...
Parameter summary (Data_Exchange):
Octet n:
I/O data byte_n
Bit 0: input/output x+w
Bit 1: input/output x+x
Bit 2: input/output x+y
Bit 3: input/output x+z
Bit 4: Status bit 2
4
Bit 5: Status bit 2
5
Bit 6: Status bit 2
6
Bit 7: Status bit 2
7
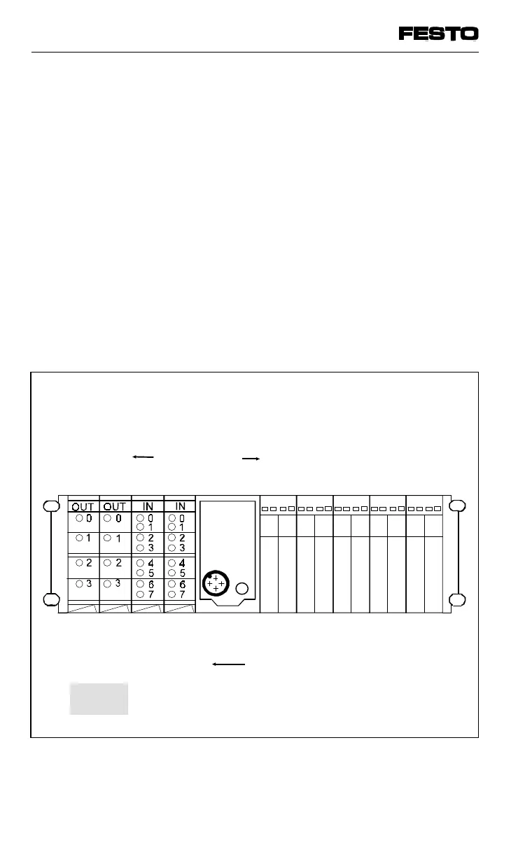
Example: valve terminal with:
10 valves
16 electrical inputs
8 electrical outputs
Outgoing
usable data
for the
DP-master
Incoming usable
data from the
DP-master
Status
bits
Octet 1
Bits
0 1 2 3 4 6
5 7
Octet 2
Bits
0 2 4 6
1 3 5 7
Octet 3
Bits
4 0
5 1
6 2
7 3
Octet
2 1
Bits
0/1 0/1
2/3 2/3
4/5 4/5
6/7 6/7
Octet
3
Bits
0/1
2/3
4/5
6/7
Fig. 4/18: Example – addressing
VIFB13 - 03/05 4. Commissioning
4-52
9701 NH

Table of Contents

Related product manuals