EasyManua.ls Logo

gefran ADV200 Series - Page 200

gefran ADV200 Series
206 pages
Print Icon
To Next Page IconTo Next Page
To Next Page IconTo Next Page
To Previous Page IconTo Previous Page
To Previous Page IconTo Previous Page
Loading...
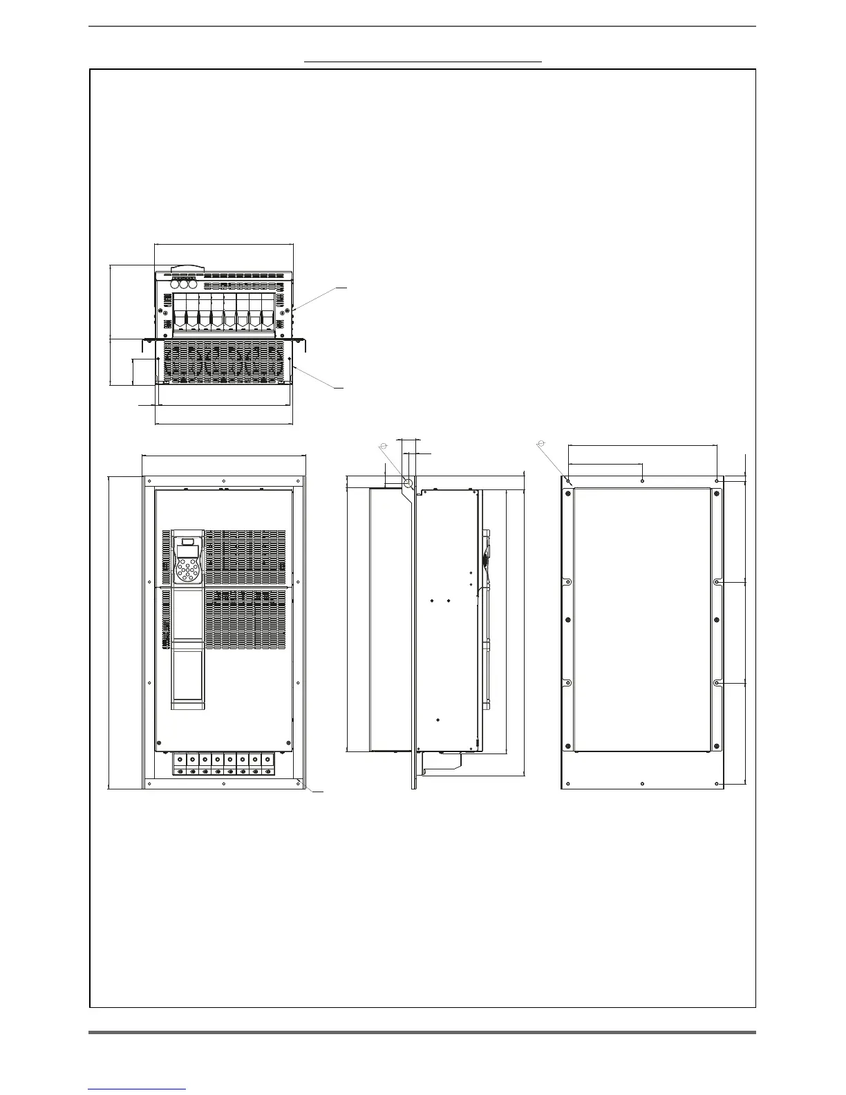
200 ADV200 • Quick start up guide
Figure 3.2.5: Size 6 dimensions (ADV200-...-EH)
137.5 222
78.5
9.5 393
412
416
490
936.5
35
790
22
40
21
25
40
856.5
790.5
222.5
445
15.05
302.15
302.15
302.15
(x10)9
GASKET
STADIO 2 INSIDE BOX
STADIO 1 EXTERNAL BOX

Table of Contents

Related product manuals