EasyManua.ls Logo

gefran ADV200 Series - Page 202

gefran ADV200 Series
206 pages
Print Icon
To Next Page IconTo Next Page
To Next Page IconTo Next Page
To Previous Page IconTo Previous Page
To Previous Page IconTo Previous Page
Loading...
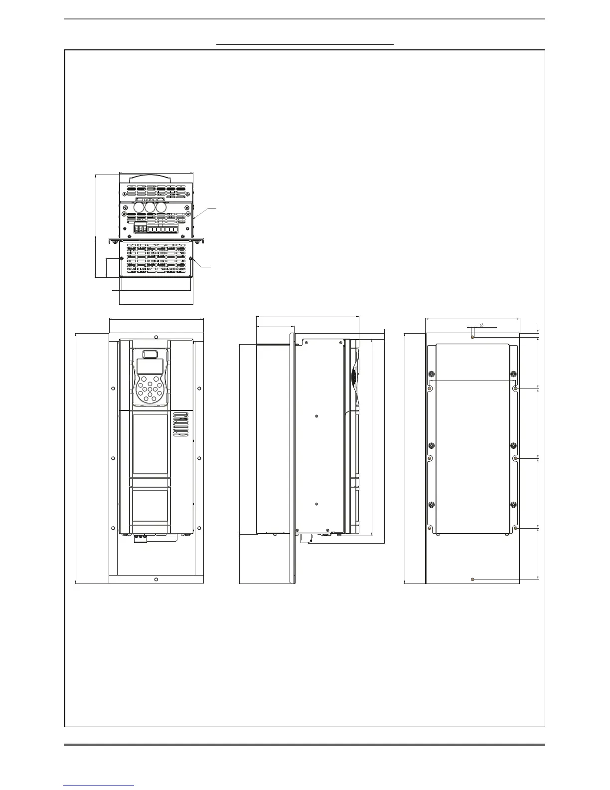
202 ADV200 • Quick start up guide
Figure 3.2.7: Size 3 dimensions (ADV200-...-EHR)
180
92
158
46
6 168
180
230
610
250
92
463
14
479
497
230
7 (x12)
610
210
120
10
125
170
170
125
STADIO 2 INSIDE BOX
STADIO 1 EXTERNAL BOX

Table of Contents

Related product manuals