EasyManua.ls Logo

Heyer Modular+ - Ventilator Module 2, AVM 3-1 and AVM 3-2

Heyer Modular+
114 pages
Print Icon
To Next Page IconTo Next Page
To Next Page IconTo Next Page
To Previous Page IconTo Previous Page
To Previous Page IconTo Previous Page
Loading...
Repair Information
23
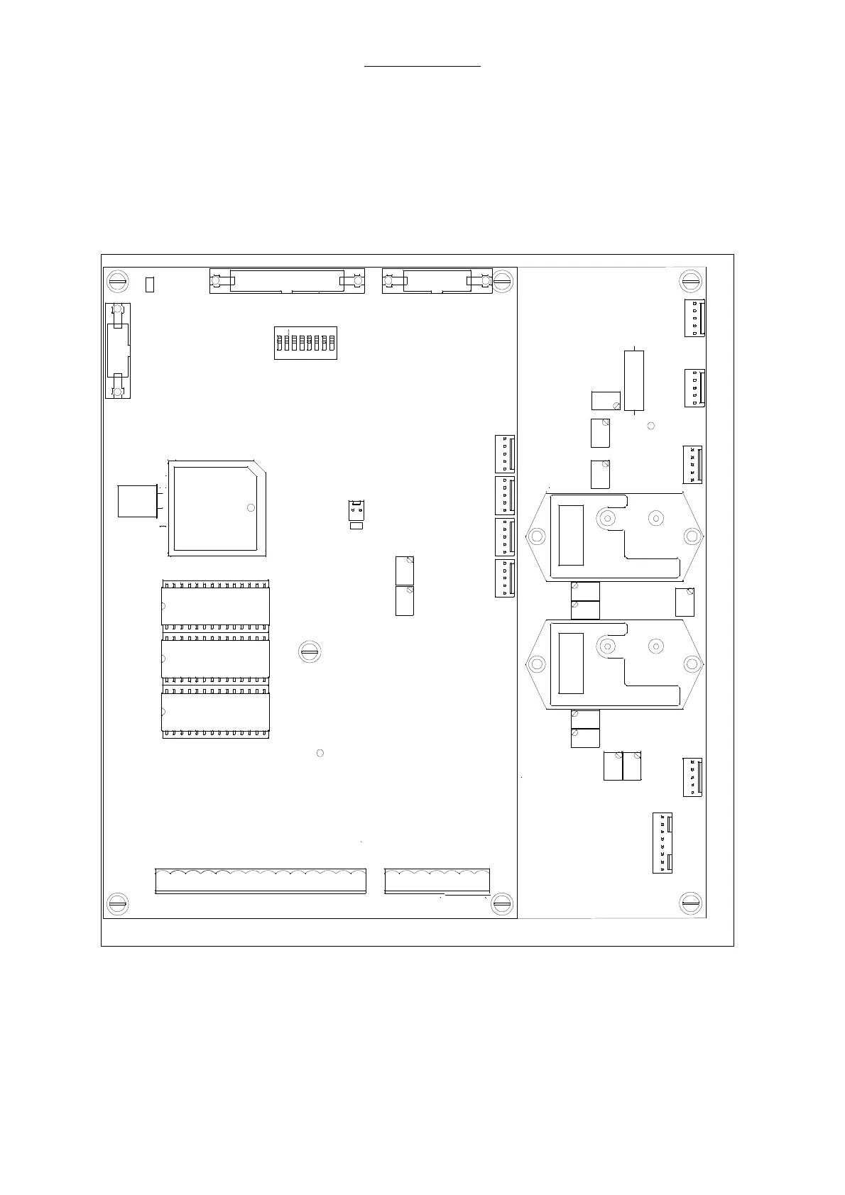
2.11 Ventilator Module 2, AVM 3-1 and AVM 3-2
Ventilator module 2 serves for the active ventilator control. Module 2 consists of two CPU boards, the
CPU board AVM3-1 with µP1 serves for a continuous validation of control actions generated by CPU
board AVM3-2 and for the communication between module 2 and module 1.
The CPU board AVM3-2 with µP2 generates all active control signals, after a validation of these
signals by µP1, AVM3-2 is enabled to operate the different active elements like the solenoid vales and
proportional valve.
P2P1
P1
P2
1
X3
1
X5
1
X11
X8
1
1
X7
P9
P6
P5
P8
P1
P2
P7
P11
P10
R33
P3
GND
X1
Q1
1
X9
1
X11
1
X10
1
X15
V30
V29
V19
1
23
456
ON
MD
7
8
X7
1
P1
P2
X16
1
Keyboard Alarm Panel
RS232
Power Supply
Motor
IF
EF
X4
X3X2
1
X8
X13
GND
V38
O2
X1
1
sw
rt
rs ws
sw
ge
gn
Endsch.
Start
(-) (+) -> lösen
+12 GND
GND
GND
GND
+5(1)
+5(2)
-12
HTON
DIS/AC
BATT
M
+31
Pressure
Sensor #2
Pressure
Sensor #1
P2
P1
CPU-board
AVM 3-1
AVM 3-1
Software
CPU-board
AVM 3-2
PV
Fig. 5 View on module 2

Table of Contents

Related product manuals