EasyManua.ls Logo

HP ProLiant DL20 Gen10 - Controller Backup Power Cabling

HP ProLiant DL20 Gen10
257 pages
To Next Page IconTo Next Page
To Next Page IconTo Next Page
To Previous Page IconTo Previous Page
To Previous Page IconTo Previous Page
Loading...
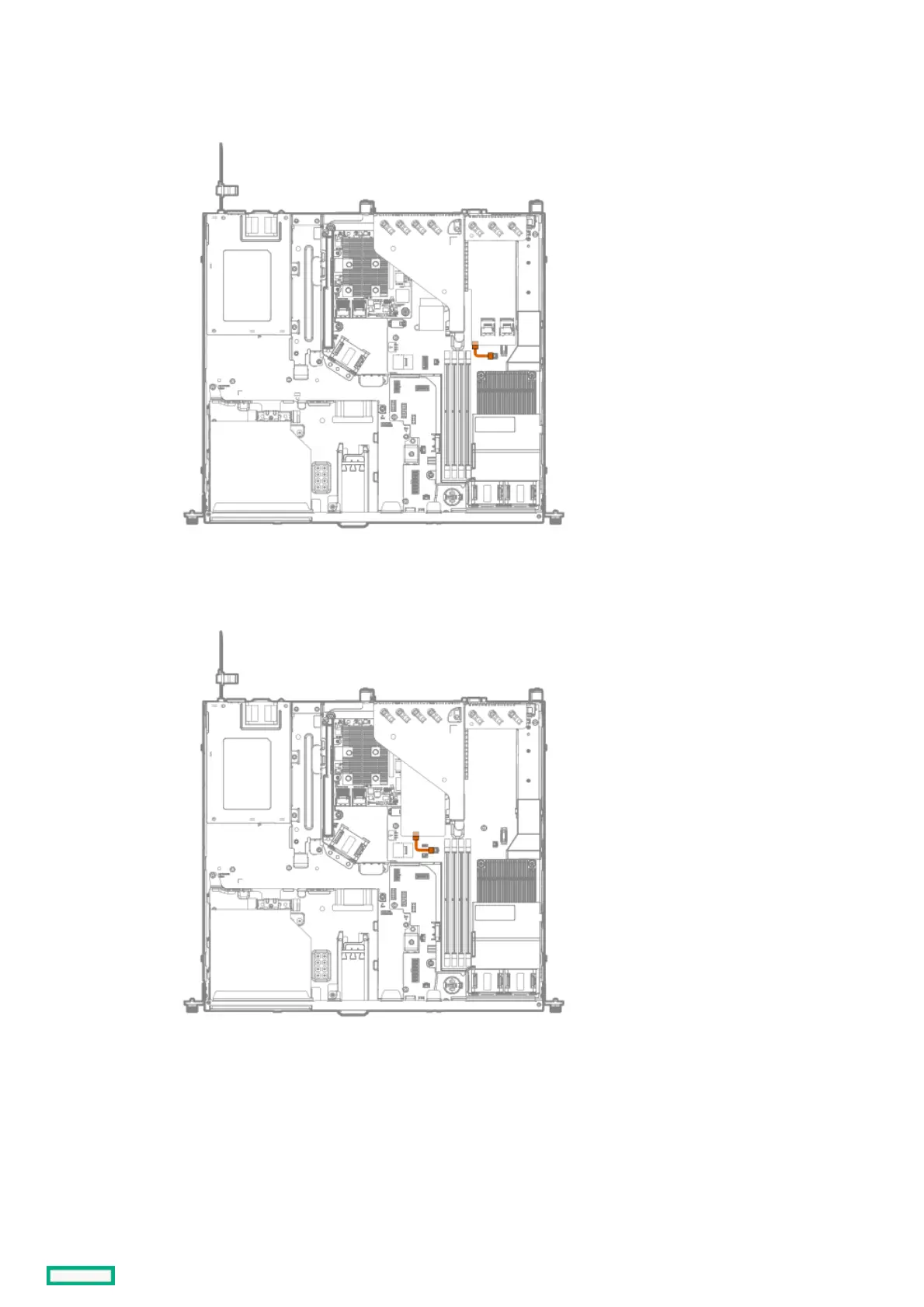
Controller backup power cablingController backup power cabling
Slot 1Slot 1
Slot 2Slot 2
Controller backup power cabling 180

Table of Contents

Related product manuals