EasyManua.ls Logo

INVT Goodrive300-21 Series - Operation Guide; Ordering Information; Drip-Proof Top Cover

INVT Goodrive300-21 Series
115 pages
Print Icon
To Next Page IconTo Next Page
To Next Page IconTo Next Page
To Previous Page IconTo Previous Page
To Previous Page IconTo Previous Page
Loading...
Goodrive300-21 integrated machine for air compressor Optional parts
-89-
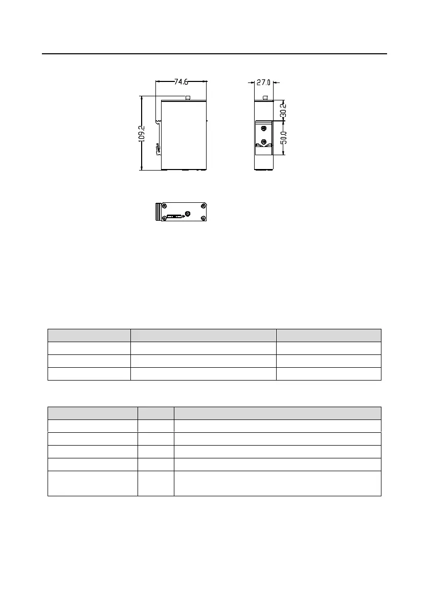
The outline dimension of the IP20 (rail-mounted housing) model is as follows (unit: mm):
外形尺寸及导轨卡扣安装尺
Figure B-9 Outline dimension for IP20 model (rail-mounted housing)
B.2.3 Operation guide
The module is usually applied in complicated environment. To cope with the complex application
conditions and ensure system stability, the power must be above 3W and in stable status (the ripple is
under 100mA).
For details, see the operation manual of ICA Series GPRS Communication Adapter.
B.2.4 Ordering information
Item
Description
Order No.
ICA200-02
Rail-mounted
11023-00091
ICA200-00
Built in the machine, without housing
11023-00042
SIM card
Used for INVT communication adapter
34016-00004
Deliverables for GPRS communication adapter
Deliverables
Qty
Remark
Adapter
1
Operation manual
1
GPRS antenna
1
GPS antenna
1
Optional
Connection terminal
2
One 6-PIN connection terminal and one 2-PIN connection
terminal
B.3 Drip-proof top cover
To meet the requirements of IP21 protection level, it is recommended to install optional drip-proof top
cover on GD300-21. The detailed package list is shown as follows:

Table of Contents

Related product manuals