EasyManua.ls Logo

Johnson JDMV2W - Hanging the Indoor Unit

Johnson JDMV2W
Print Icon
To Next Page IconTo Next Page
To Next Page IconTo Next Page
To Previous Page IconTo Previous Page
To Previous Page IconTo Previous Page
Loading...
Step 2: Hang indoor unit.
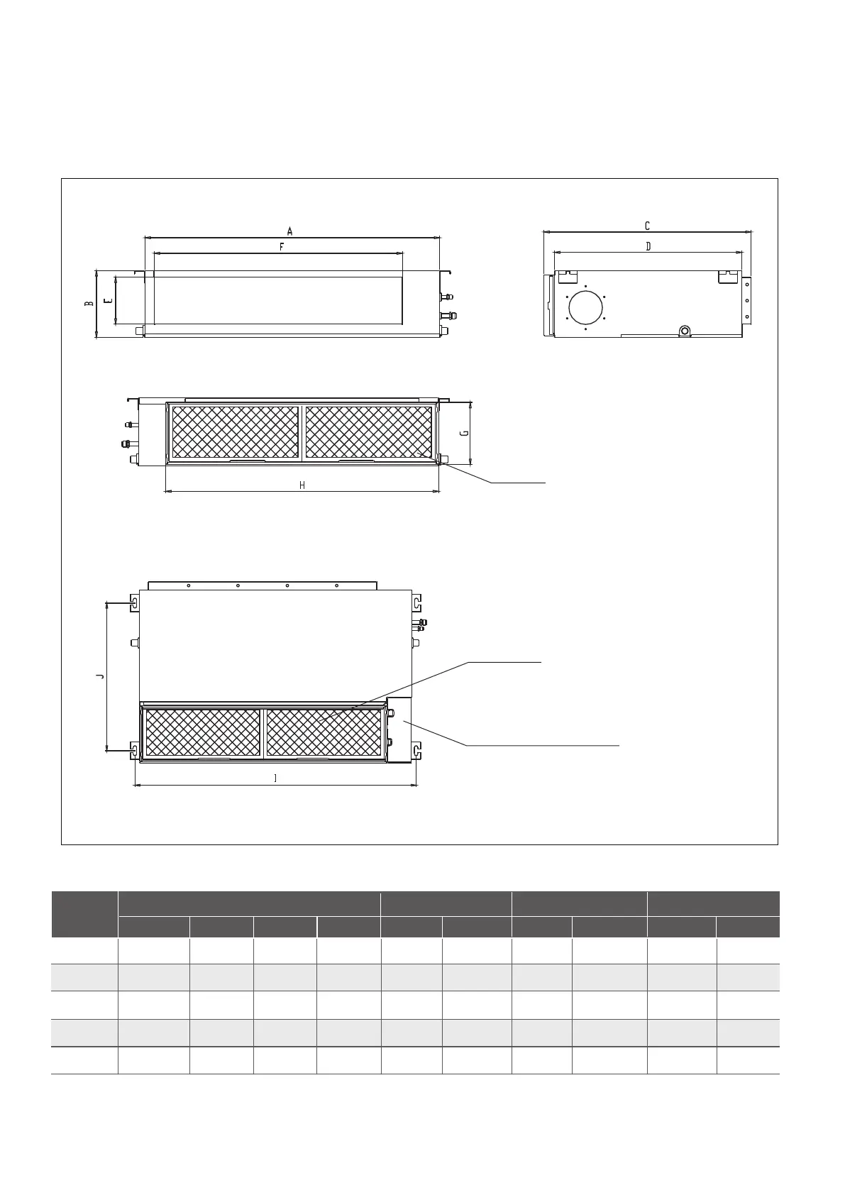
1. Please refer to the following diagrams to locate the four positioning screw bolt
holes on the ceiling. Be sure to mark the paces where you will drill ceiling hook
holes.
Air outlet dimensions
Air inlet dimensions
Descending ventilation opening and mounted hook
Air filter
Electric control box
(unit: mm/inch)
MODEL
(Btu/h)
Outline dimension
A B C
18K 210/8.3 674/26.5880/34.6
24K~36K 249/9.8 774/30.51100/43.3
30K~36K 249/9.8 774/30.51360/53.5
36K~60K 300/11.8 874/34.41200/47.2
air outlet opening size
D E F
136/5.4 706/27.8600/23.6
175/6.9 926/36.5700/27.6
175/6.9 1186/46.7700/27.6
227/8.9 1044/41.1800/31.5
air return opening size
190/7.5
228/8.9
228/8.9
280/11
Si
z
e
o
f
mo
unted lug
I
920/36.2782/30.8
1140/44.91001/39.4
1400/55.11261/49.6
1240/48.81101/43.3
J
G
H
508/20
598/23.5
598/23.5
697/27.4
Air filter
9K/12K
200/7.9 506/19.9700/27.6 152/6 537/21.1450/17.7 186/7.3 741/29.2599/23.6
360/14.2
19
V.2

Table of Contents

Related product manuals