EasyManua.ls Logo

Johnson JDMV2W - Installation de Lunité Intérieure

Johnson JDMV2W
Print Icon
To Next Page IconTo Next Page
To Next Page IconTo Next Page
To Previous Page IconTo Previous Page
To Previous Page IconTo Previous Page
Loading...
Consignes de
Sécurité
Installation de l’unité intérieure
Instructions de l’installation - Unité intérieure
NOTE : /¶LQVWDOODWLRQGXSDQQHDXGRLWrWUHHIIHFWXpHDSUqVO¶DFKqYHPHQWGHFkEODJHHWGHWX\DXWHULH
Étape 1 : Sélectionnez l’emplacement d’installation
$YDQWG¶LQVWDOOHUO¶XQLWpLQWpULHXUHYRXVGHYH]FKRLVLUXQ
emplacement approprié. Les normes suivantes vous
aideront à sélectionner un emplacement approprié pour
l’unité
Emplacement approprié d’installation doit répondre
aux normes suivantes :
,O\DVXI¿VDPPHQWG¶HVSDFHSRXUO¶LQVWDOODWLRQHWOD
maintenance.
,O\DVXI¿VDPPHQWG¶HVSDFHSRXUOHVWX\DX[HWOHV
tuyaux de drainage.
/HSODIRQGHVWDXQLYHDXKRUL]RQWDOHWVDVWUXFWXUH
peut supporter le poids de l’unité intérieure.
/¶HQWUpHHWODVRUWLHG¶DLUQHVRQWSDVERXFKpHV
/¶DLUSHXWV¶pFRXOHUGDQVWRXWHODSLqFH
Il n’y a pas de radiation directe venant des
UpFKDXIIHXUV
/HVPRGqOHVDYHFXQHFDSDFLWpGHUHIURLGLVVHPHQW
de 9000Btu à 18000Btu sont seulement applicables
jXQHSLqFH
NE PAS installer l’unité dans les endroits suivants
:
Zones avec le forage pétrolier ou la facturation
K\GUDXOLTXH
=RQHVF{WLqUHVDYHFKDXWHVDOLQLWpGDQVO¶DLU
=RQHVDYHFJD]FRUURVLIVGDQVO¶DLUFRPPHFHOOHV
SURFKHVGHVVRXUFHVFKDXGHV
=RQHVDYHFÀXFWXDWLRQVG¶DOLPHQWDWLRQFRPPHOHV
usines
(VSDFHVIHUPpVFRPPHOHVFDELQHWV
Les cuisines utilisant le gaz naturel
=RQHVDYHFRQGHVpOHFWURPDJQpWLTXHVIRUWHV
=RQHVROHVPDWpULDX[RXOHVJD]LQÀDPPDEOHV
VRQWVWRFNpV
3LqFHVDYHFKDXWHKXPLGLWpFRPPHOHVVDOOHVGH
bains ou buanderies
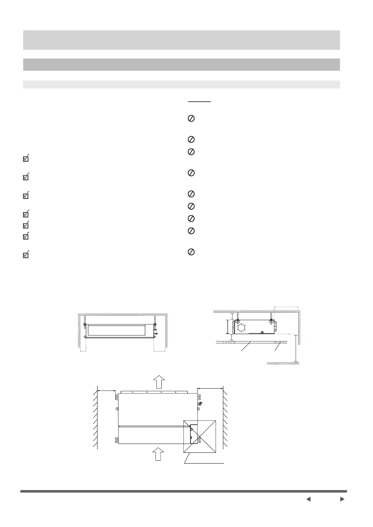
Place d’installation
>7.9in(20cm) >11.8in(30cm)
>0.8in(2cm)
>
0.8in(2cm)
>11.8in(30cm)
>90.6in(230cm)
B
7.9in(20cm)
11.8in(30cm)
Entrée d’air
Unité intérieure
Plafond fort et durable
&{Wp
droit
&{Wp
JDXFKH
$FFqVDX[VHUYLFHV
3ODQFKHU
Plafond
(En l’absence de
SODIRQG
Sortie d’air
LQ[LQFP[FP
RUL¿FHGHFRQWU{OH
Page 19
Installation de
l’unité intérieure
Page 19

Table of Contents

Related product manuals