EasyManua.ls Logo

Klimor EVO-S - Page 14

Klimor EVO-S
Print Icon
To Next Page IconTo Next Page
To Next Page IconTo Next Page
To Previous Page IconTo Previous Page
To Previous Page IconTo Previous Page
Loading...
12
MODUŁOWE CENTRALE KLIMATYZACYJNE EVO-S, EVO-H
DOKUMENTACJA TECHNICZNO-RUCHOWA
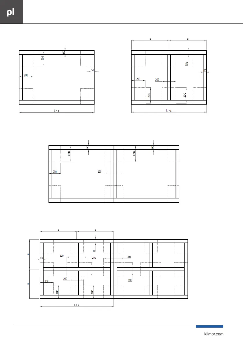
Rys. Nr 25 Centrala na ramie Rys. Nr 26 Rama dla centrali składającej się z jednego monobloku ze wzmocnieniem
c) dla central monoblokowych oraz pojedynczych blow z ramą z prolu ceowego podparcie 200x200mm wymagane jest na zewnętrznych
końcach ramy oraz w środku jej długości (w miejscu poprzeczki środkowej). Natomiast w miejscach łączenia monobloków lub bloków centrali
wymagana jest powierzchnia podparcia 300x200 mm Rys. Nr 27.
Rys. Nr 27 Rama dla centrali składającej się z kilku monobloków
d) dla central o szerokości od 2500mm do 4600mm (wlk. 0230-0090) dodatkowe podparcie o wymiarach 300x200 mm powinno znajdować
się na końcach bloków w miejscu połączenia ramy zewnętrznej z elementem wzdłużnym centrali Rys. Nr 28
Rys. Nr 28 Rama dla central od wielkości 0230 do 0090

Table of Contents

Related product manuals