EasyManua.ls Logo

Klimor EVO-S - Page 72

Klimor EVO-S
Print Icon
To Next Page IconTo Next Page
To Next Page IconTo Next Page
To Previous Page IconTo Previous Page
To Previous Page IconTo Previous Page
Loading...
70
EVO-S, EVO-H MODULAR AIR HANDLING UNITS
OPERATION AND MAINTENANCE MANUAL
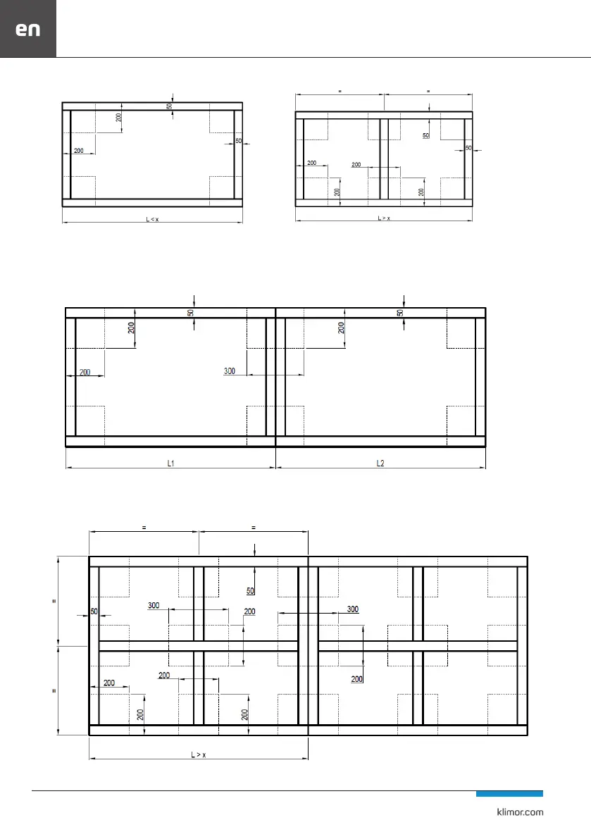
Fig. 25 AHU on a frame Fig. 26 The frame for AHU unit consisting of one monobloc with support
c) for monobloc AHUs and single blocks with a channel prole frame support 200x200mm is required at the external ends of the frame and
in the middle of its length (in place of the central crossbar). However, support surface 300x200 mm is required in places where monoblocs
or unit blocks are connected Fig. No. 27.
Pic. 27 Frame for AHU unit consisting of several monoblocs
d) or air-handling units size from 0230 to 0090 large additional support 300x200 mm should be located at the ends of the blocks in the
place of connecting external frame with the air-handling unit longitudinal element Fig. 28
Fig. 28 Frame for AHU unit sizes 0230 to 0090

Table of Contents

Related product manuals