EasyManua.ls Logo

Kollmorgen S7240

Default Icon
166 pages
To Next Page IconTo Next Page
To Next Page IconTo Next Page
To Previous Page IconTo Previous Page
To Previous Page IconTo Previous Page
Loading...
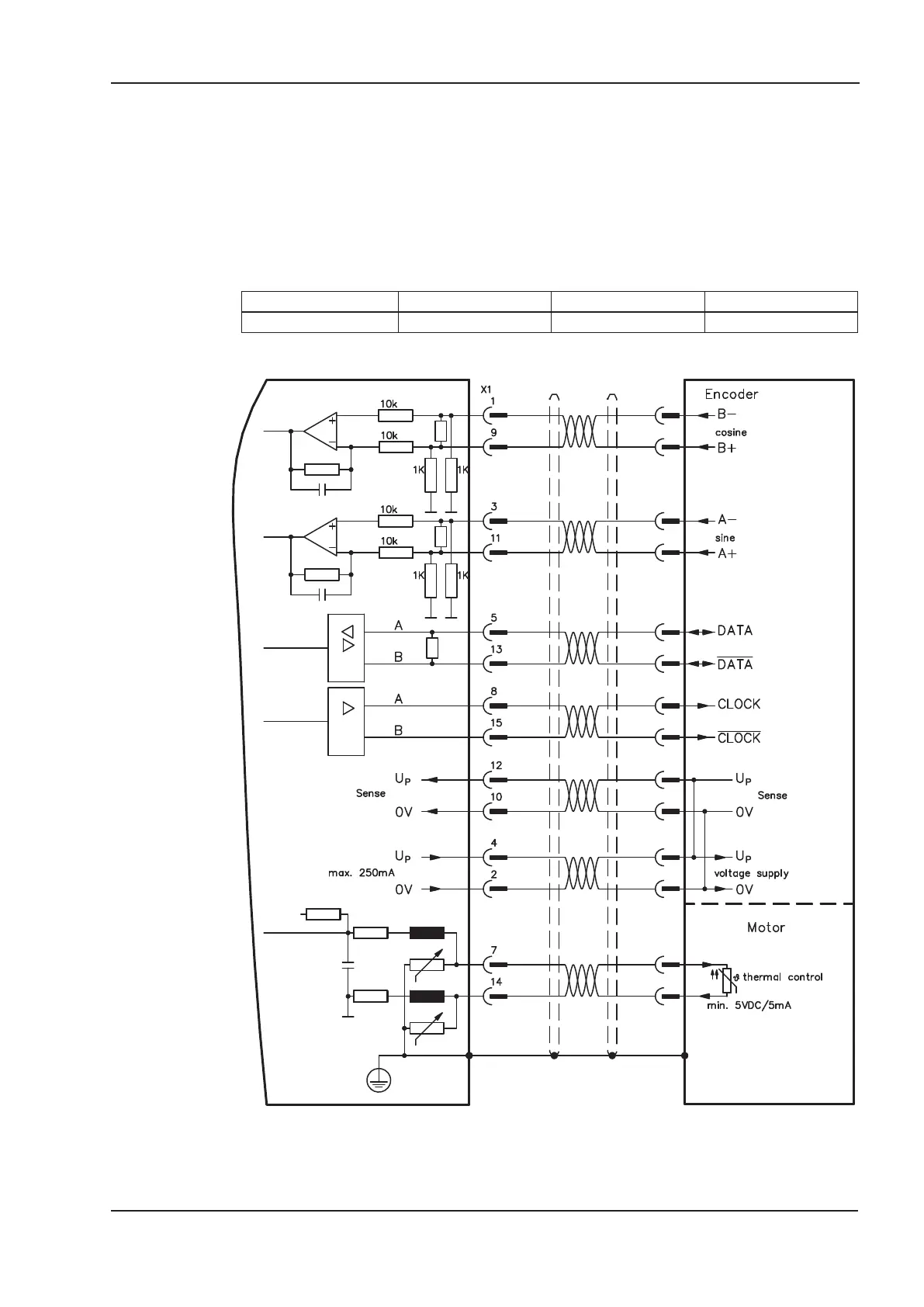
7.12.7 Sine Encoder with SSI (X1)
Wiring of sine-cosine encoder with SSI interface as a linear feedback system
(primary, ð p.76).
The thermal control in the motor is connected via the encoder cable to X1 and evaluated
there. All signals are connected using our pre-assembled encoder connection cable. If
cable lengths of more than 50m are planned, please consult our customer service.
Frequency limit (sin, cos): 350 kHz
Type FBTYPE EXTPOS GEARMODE
SinCos SSI 5V linear 26 - -
Switch on supply voltage for the encoder at X1: set ENCVON to 1
S701x2-S724x2 Instructions Manual 83
Kollmorgen 07/2014 Electrical installation
S700
SubD 15

Table of Contents

Related product manuals