EasyManua.ls Logo

Kollmorgen S7240

Default Icon
166 pages
To Next Page IconTo Next Page
To Next Page IconTo Next Page
To Previous Page IconTo Previous Page
To Previous Page IconTo Previous Page
Loading...
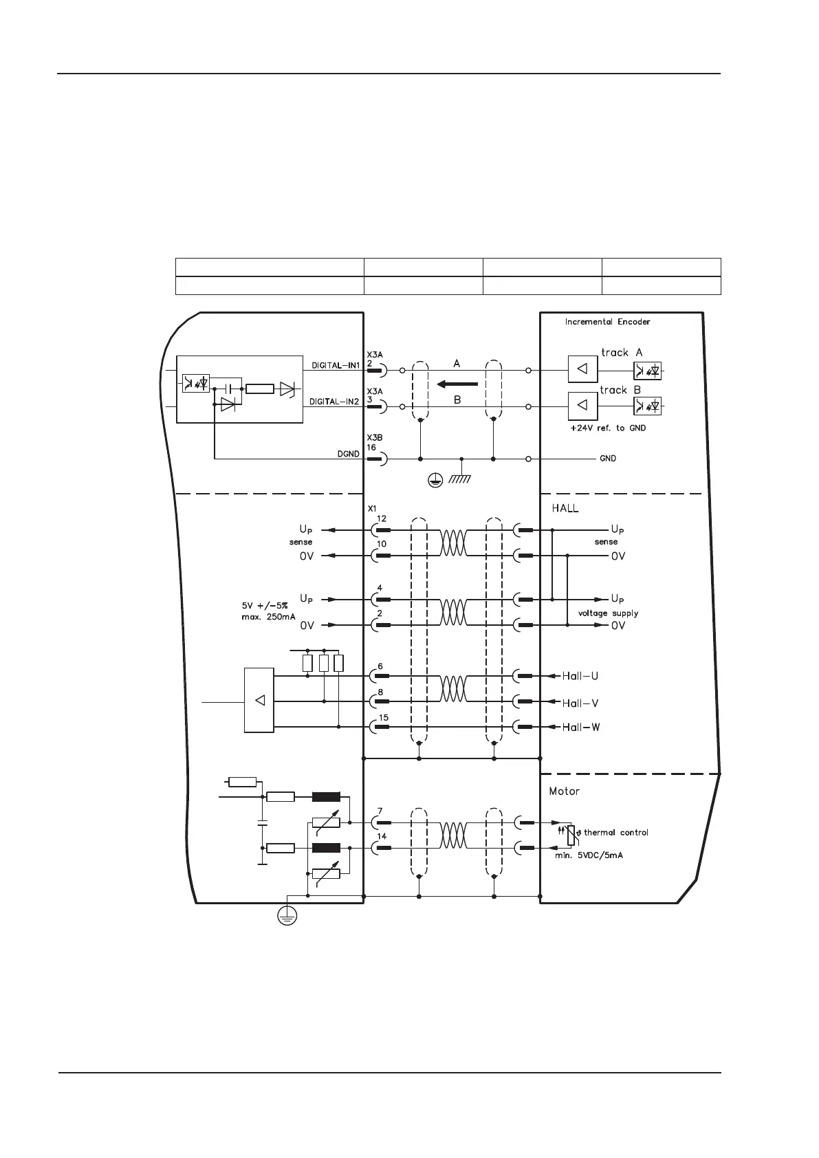
7.12.14 ROD (AquadB) 24V with Hall (X3, X1)
Wiring of a 24V incremental encoder (ROD, AquadB) and Hall sensors as a feedback unit
(primary, ð p.76). For the commutation hall sensors are used and for the resolution an
incremental encoder.
The thermal control in the motor is connected to X1 and evaluated there. If cable lengths
of more than 25m are planned, please consult our customer service.
Frequency limit X3: 100 kHz, X1: 350 kHz
Type FBTYPE EXTPOS GEARMODE
AquadB 24V + Hall 14 - -
90 S701x2-S724x2 Instructions Manual
Electrical installation 07/2014 Kollmorgen
S700

Table of Contents

Related product manuals