EasyManua.ls Logo

Konami Concerto Crescent - Page 48

Konami Concerto Crescent
58 pages
Print Icon
To Next Page IconTo Next Page
To Next Page IconTo Next Page
To Previous Page IconTo Previous Page
To Previous Page IconTo Previous Page
Loading...
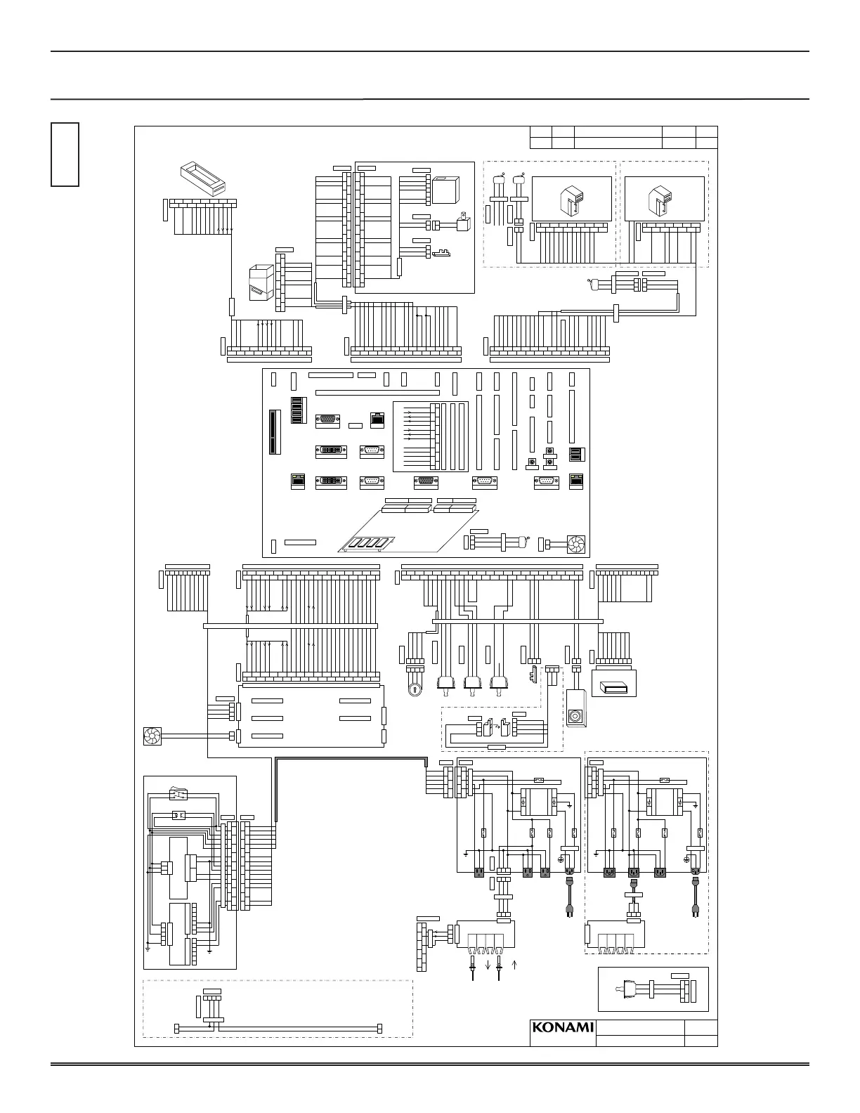
SECTION 6 - WIRING DIAGRAMS
6-2
© 2018 Konami Gaming Inc. P/N 810352
CONCERTO CRESCENT
(Original Instructions)
Sheet 1
KONAMI GAMING, INC.
Las Vegas, Nevada
APPDREV DATEEC
DESCRIPTION
SHEET NAME
PART NO.
SHEET
810353
PART NAME
WIRING DIAGRAM
CONCERTO-CRESCENT
HEA6833 10/14/16INITIAL RELEASE
APPDREV DATEEC
DESCRIPTION
COIN ACCEPTER UNIT
INTERNATIONAL
PDB
1
5
3
2
4
6
N
L
N-SW
L-SW
L-FUSE
FG
POWER DISTRIBUTION UNIT
#310612
L
FG
NN
L
L
N
L
N
L
N
L-SW
N-SW
L
N
FG
FG
FG
FG
FG
FG
FG
L-SW L-FUSE
#110231
CNA01
1
5
3
2
4
6
31 2
CNA02
L
L
L
L-SW
CNA04
1 32
31 2
L
FG
N
1
3
2
4
GND
TXD
RXD
#110262
1
5
3
13
2
4
6
14
K3-IFB SAS
#110459
OPTICAL SAS PCB
#530148 (SASB-2)
CNX03
CNX04
CNX05
CNX06
CNX02
CNX01
#110234
POWER DISTRIBUTION UNIT
#310613
L
FG
NN
L
L
N
L
N
L
N
L-SW
N-SW
FG
FG
FG
FG
FG
FG
L-SW L-FUSE
#110231
CNA01
1
5
3
2
4
6
L
L
L
L-SW
2
1
4
3
NOISE
FILTER
#490290
LINE
LOAD
OPTICAL SAS PCB
#530148 (SASB-2)
CNX03
CNX04
CNX05
CNX06
CNX02
CNX01
#110428
1 32
L
FG
N
#110467
GND
24V-1
24V-2
12GND-1
12GND-2
12V-1
12V-2
24GND-2
AC FAIL
PSB
9
1
5
7
3
11
13
15
10
2
8
4
6
12
14
16
17
19
18
N
L
N-SW
L-SW
FG
L-FUSE
24GND-1
POWER SUPPLY UNIT #310610
PSB
9
1
5
7
3
11
13
15
10
2
8
4
6
12
14
16
17
19
18
SW IN1
SW IN2
SW OUT1
SW OUT2
SSR 1
SSR 5
SSR 3
SSR 4
1
5
3
2
4
L
N
FG
L
N
FG
FG
12V
12V
GND
GND
24V
24V
GND
GND
#110885
1
5
3
2
4
6
1
5
3
2
4
6
7
SW POWER SUPPLY 24V-300W
#490838
21 43
SW6
LAMP
GND
SW
GND
RESET OUT
GND
RESET IN
ICON SW6
LED LINK
2
1
2
1
#110465
SLOT STAND
SW DROP
BSW DROP
SW GND
CNB78
COM
NO
NC
#110324
BACKPLANE
#530581 (K3-IFB2)
CNB17
CNB09 CNB10
CNB55
CNB07
ICON1
24GND-1
24V-1
VHR-4N
(JST)
#490289
I/O SSR
#490465
MAIN POWER SW
208210-2
(AMP)
208209-2
(AMP)
VHR-6N
(JST)
VHR-7N
(JST)
VHR-5N
(JST)
350715-1
(AMP)
350781-1
(AMP)
350781-1
(AMP)
350767-1
(AMP)
350766-1
(AMP)
350766-1
(AMP)
120VAC
50/60 Hz
AC OUTLET
AC OUTLET
(Switched)
AC OUTLET
350766-1
(AMP)
220-240VAC
50/60 Hz
AC OUTLET
(Switched)
AC OUTLET
FUSE 2A
FUSE 2A
FUSE 2A
FUSE 10A
#490079
#490079
#490079
#530032
#490459
#490459
#490459
#530032
FUSE 5A
FUSE 1A
FUSE 1A
FUSE 1A
A5.2ESUFA5ESUF
171822-4
(AMP)
MIL-14P
TO SAS PORT
FIBER OPTIC
CABLE
(TXD )
FIBER OPTIC
CABLE
(RXD )
TO BACKPLANE
(K3-IFB2)
#490044
DROP DOOR SW
TO
NEXT CABINET
172165-1(AMP)172233-1(AMP)
TO
NEXT CABINET
TO LED CONTROLLER(PDM2-ICON)
XAP-04V-1
(JST)
PLAY BUTTON
VIDEO3
TOUCH SCREEN1VIDEO1
VIDEO2
2
1
4
3
24V-2
24GND-2
VENT FAN
#530054
12V
GND
1
2
CNB13
2
1
3
CNB11
HOP CNT
HOP 24V
HOP EXIST
HOP OVER
HOP SNS1
HOP GND-1
HOP GND-2
DIV ON
DIV COIN
DIV 12V
DIV ACCUM
DIV 5V
DIV GND-3
DIV INHIBIT
DIV CASH
DIV GND-1
DIV GND-2
DIV FAULT
10
9
2
1 5
84
73
6 12
11
18
17
14
13
16
15
20
19
22
21
501646-2400
(MOLEX)
24
23
HOP GND-1
HOP 24V
CNB11
10
9
2
1
5
8
4
7
3
6
12
11
18
17
14
13
16
15
24
23
20
19
22
21
25
DIV ON
DIV COIN
DIV 12V
DIV ACCUM
DIV 5V
DIV GND-1
DIV INHIBIT
DIV CASH
DIV GND-2
DIV GND-3
DIV FAULT
211149-1
(AMP)
211150-1
(AMP)
LED CONTROLLER
#530590 (PDM2-ICON)
CN4
CN8
CN5
CN6
SW6
CN2
ICON2
ICON 5V
ICON GND
SIO CLK
SIO OE2
SIO DIN
SIO DOUT
ICON SYNC
PWR SAVE-L
501646-3000
(MOLEX)
BV LED+
BV LED-
PRI LED+
FAN 12V
BZL BV
BZL PRI
CNB04
ICON 5V
ICON GND
SIO CLK
SIO OE2
SIO DIN
SIO DOUT
ICON SYNC
PWR SAVE-L
BV LED+
BV LED-
PRI LED+
FAN 12V
BZL BV
BZL PRI
CNB04
TL 24V
TL1
TL2
TL3
TL4
TL5
TL 24V
TL1
TL2
TL3
TL4
TL5
BV LED+
BV LED-
BV 12V-1
BV RXD
BV TXD
BV GND-2
BSW BV
BV GND-3
BV GND-6
SW BV
BV GND-5
BV TRANSP
BV STK
BV GND-7
BV 5V-1
BV RESET
BV GND-8
BV GND-9
BV 24V-1
BV 24V-2
BV 12V-2
BV GND-1
BV RXD CL
BV TXD CL
BSW BV
SW BV
BV GND-5
2
1
3
2
1
3
NC
NO
COM
BILL DOOR
#110054
BV RXD
BV TXD
BV GND-2
BV 24V-1
10
9
2
1 5
84
73
6 12
11
BV MEI
BV LED+
BV LED-
MEI
BV LED+
BV LED-
BV 12V-1
BV GND-3
BV 5V-1
BV RESET
BV GND-8
BV GND-9
BV 24V-2
BV 12V-2
BV GND-1
BV RXD CL
BV TXD CL
10
9
2
1 5
84
73
6 12
11
14
13 15
BV JCM
JCM
BV STK
BV GND-7
21
STACK STACK1
21
NO
COM
#110055
BV STK
BV GND-7
NO
COM
MIL-26P
176279-1(AMP)
172162-1(AMP)
172213-2
(AMP)
171822-2(AMP)
171822-3
(AMP)
172213-3
(AMP)
#490046
BILL STK SW
BV DOOR SW
#490050
10
9
2
1 5
84
73
6 12
11
18
17
14
13
16
15
20
19
22
21 25
24
23
26
BILL VALIDATORBILL VALIDATOR
BILL DOOR
CNB13
172167-1
(AMP)
DROP
TXD
RXD
CNB35
GND-1
DSR
12V-1
GND-2
5V
DTR
9
1
5
7
3
11
13
10
2
8
4
6
12
14
CTS
RTS
12V-2
GND-3
GND-4
CNB36
CNB37
TO EXTERNAL CONTROLLER
MIL-14P
COM1
COM2
COM3
2
1
3
NC
NO
COM
CNB23
BSW LOGIC
SW LOGIC
GND
EHR-3
(JST)
#490046
LOGIC BOX
SW
12V
1
2
GND
CNB22
LOGIC BOX
FAN
#530054
DROP
SW
CNB78
CN7
4
CM
CNB23
LOGIC SW
DC FAN
L
FG
N
-
+
SW POWER SUPPLY 12V-150W
#490837
12AC
12DC 12GND
10
9
2
1 5
84
73
6 12
11
14
13
16
15
18
17
20
19
22
21
24
23
26
25
28
27
30
29
EBUS CLK+
EBUS CLK-
EBUS TXD+
EBUS TXD-
EBUS RXD+
EBUS RXD-
EBUS GND-1
EBUS GND-2
EBUS CLK+
EBUS CLK-
EBUS TXD+
EBUS TXD-
EBUS RXD+
EBUS RXD-
EBUS GND-1
EBUS GND-2
CNB18
TOUCH SCREEN2
10
9
2
1 5
84
73
6 12
11
14
13
PRINTER
PRI TXD
PRI 24V-1
PRI RXD
PRI DSR
PRI CTS
PRI RST
PRI 12V
PRI GND-4
PRI GND-5
PRI LED+
PRI GND-1
PRI 24V-2
39-01-2140
(MOLEX)
TICKET PRINTER
10
9
2
1 5
84
73
6 12
11
18
17
14
13
16
15
CNB12
PRI TXD
PRI 24V-1
PRI RXD
PRI DSR
PRI CTS
PRI RST
PRI 12V
PRI GND-4
PRI GND-5
PRI LED+
PRI GND-1
PRI 24V-2
#110867
501646-1800
(MOLEX)
CNB12
24AC
24DC
DIV 24V
CN1FAN-1
MAIN
PLAY BUTTON
LED
BELLY LED
LOWER LED
FAN-2
FAN
POWER
IN
FAN LINK
TOPPER
UPPER LED
CNEX01
EXT BOARD
USB(SYS)
CNB58
2
1
4
3
NOISE
FILTER
#490290
LINE
LOAD
DOOR
CNB06
EBUS
CNB72
CNB82
VIDEO(SYS)
CNB14
TEST(SYS)
CNB61
TEST
DOOR
SENSOR
CNB26
EXT
UART1
CNB64
EXT
UART2
CNB65
EXT I/O1
CNB28
EXT I/O2
CNB29
VSW
CNB27
EXTEND
MONITOR
CNB15
REEL
CNB16
24V OUT
CNB08
VIC COM
POW
CNB24
POWER
OUT
CNB02
CNB22
DC FAN
CNB22
DC FAN
CNB22
DC FAN
JXU(NSW)
CNB20
CNB57
LAN(SYS)
CNB62
LAN
USB
CNB63
CNB08
LINE
OUT2
CNB53
LINE
OUT1
CNB54
LINE IN/OUT3
CNB83
ATU
(VIC,QLD)
CNB21
COIN HOPPER
10
9
2
1
5
8
4
7
3
6
12
11
HOP
HOP CNT
HOP 24V
HOP EXIST
HOP OVER
HOP SNS1
HOP GND-2
HOP GND-1
211758-1
(AMP)
DIV ON
DIV COIN
DIV 12V
DIV ACCUM
DIV 5V
DIV GND-1
DIV INHIBIT
DIV CASH
DIV GND-2
DIV GND-3
DIV FAULT
DIV 24V
10
9
2
1
5
8
4
7
3
6
12
11
18
17
14
13
16
15
24
23
20
19
22
21
25
DIV ON
DIV COIN
DIV 12V
DIV ACCUM
DIV 5V
DIV GND-1
DIV INHIBIT
DIV CASH
DIV GND-2
DIV GND-3
DIV FAULT
2
1
5
4
7
3
6
COIN
SNS
2
1
SOL
2
1
#110894
1375820-7
(AMP)
917686-1
(AMP)
171822-3
(AMP)
COIN ACCEPTOR
COIN DIVERTER
SOLENOID
COIN DIVERTER
SENSOR
#530026
#490065
CM
2
1
3
SW GND-1
SW MAIN
KEY RESET
BSW MAIN
SNS 5V-2
SNS GND-2
SNS MAIN
10
9
2
1 5
84
73
6 12
11
18
17
14
13
16
15
20
19
KEY GND-2
30
29
22
21 25
2824
2723
26 32
31
34
33
36
35
SW TOP
SP W+
SP W-
SW GND-3
CNB03
KEY GND-1
KEY AUDIT
SW MNT
38
37
BSW SUB
SW SUB
SW GND-2
SW GND-6
CNB03
501646-4000
(MOLEX)
SNS 5V-2
SNS MAIN
SNS GND-2
21 3
SNS
SW MAINNO
NC
COM SW GND-1
BSW MAIN
MAIN SW
1 32 4
KEY GND-2
KEY AUDIT
KEY RESET
KEY GND-1
KEY
SW TOPNO
NC
COM SW GND-6
TOP SW
SW SUBNO
NC
COM SW GND-2
SUB SW
BSW SUB
1 32 4
SP W+
SP W-
1 2
SP W
1 2
SP+
SP-
43025-0200
(MOLEX)
#310619
WOOFER
#490044
#490044
#490044
DECK SW
BELLY DOOR
SW
TOP DOOR
SW
DECK
SENSOR
#490065
171822-3
(AMP)
104257-3
(AMP)
KEY SW
#310025
40
39
GND
24V-1
24V-2
12GND-1
12GND-2
12V-1
12V-2
24GND-2
AC FAIL
CNB01
91 5 73 102 84 6
24GND-1
VHR-10N
(JST)
CNB01
CNCP01 CNCP02 CNCP04CNCP03
MEMORY BOARD
#530352 (K3-MMB)
KP3.5 MAIN PROCESSING UNIT
#310667
#110890 (1/2)
#110308
PRINTER
CNB12
COIN
CNB11
BILL
CNB13
ICON
CNB04
MAIN
CNB03
POWER IN
CNB01
SAS PORT
NALPKCABOT)2BFI-3K(ENALPKCABOT )2BFI-3K(ENALPKCABOT)2BFI-3K(E
TO BACKPLANE (K3-IFB2))2BFI-3K(ENALPKCABOT)2BFI-3K(ENALPKCABOT
CNB05
METER
BASE 1 OF 4
HM1
HM5
CNB05
HM3
HM4
HM SW
HM GND-2
HM GND-1
HM2
10921 5 84 73 6 1211 1413
CNB05
XAP-14V-1
(JST)
HM1
HM5
CNT-L
HM3
HM4
HM SW
HM GND-2
HM GND-1
HM2
51191-0800
(MOLEX)
EM COUNTER
#530364 (METER)
CN1
00000000
21 5 84 73 6
TO BACKPLANE (K3-IFB2)
STACK2
NC
NO
#490046
COM
NC
NO
COM
#110056
PUDP-30V-S
(JST)
10
9
2
15
8 4
7 3
612
11
14
13
16
15
18
17
20
19
22
21
24
23
26
25
28
27
30
29
2
1
3
4
2
1
3
SNS
172213-3(AMP)
DECK
5V
GND
SNS
PHR-4(JST)PHR-3(JST)
5VLED
LED
SNS
GND5V
21 3
#490844
DECK SENSOR
#110912
(OPTION)
#110866
#110893
#110896
#490887

Table of Contents

Related product manuals