EasyManua.ls Logo

MD Helicopters 369D - Page 335

MD Helicopters 369D
722 pages
Print Icon
To Next Page IconTo Next Page
To Next Page IconTo Next Page
To Previous Page IconTo Previous Page
To Previous Page IconTo Previous Page
Loading...
CSP-HMI-3
MD Helicopters, Inc.
MAINTENANCE MANUAL
[ Main Menu ]
[ HMI3 Book TOC ]
[ Chapter 96 TOC ]
96-01-00
Page 255
Revision 11
The information disclosed herein is proprietary to MD Helicopters, Inc.
Neither this document nor any part hereof may be reproduced or transferred to
other documents or used or disclosed to others for manufacturing or any other
purpose except as specifically authorized in writing by MD Helicopters, Inc.
Copyright © 19992016 by MD Helicopters, Inc.
P
W
T
A
B
K
L
C
F
E
M
N
H
D
J
S
V
R
U
X
J130P
3
1
2
22
10
9
20
21
22
14
13
12
17
15
18
11
16
6
7
4
5
8
XMIT
S112
S4
CARGO
HOOK
S101
TRIGGER
A B
SP3
STOWED
A B
SP1
A B
SP2
S5
HOIST/
FLOATS
L
R
UP
DN
S107
CYCLIC
TRIM
ICS
LEFT CYCLIC STICK
(TB5-4B) RV505B22
(TB5-2A) RV501A22
RV502A22N
(TB1-12B) M522A20
(TB1-12D) M531E20
(TB1-9D) A509A20
(TB1-7B) A517C20
(TB1-16C) M504F20
(TB1-16A) M503F20
(TB1-19D) M520C20
(TB1-21A) RED A507A20
(TB1-21D) BLU A507A20
(TB1-20A) RED A510A20
(TB1-20C) BLU A510A20
(TB1-19C) A508C20
(TB1-2B) C506C22
(TB1-3B) RED C504C20
(TB1-3D) BLU C504C20
JMPR
(TB1-1B) RED C508C20
(TB1-1D) BLU C508C20
A
B
C
D
J
E
F
H
P112A20
P111D20
L104C20
L123B16
C110F20
C108G20
C109F20
(TB1-6C) K502G20
(TB1-6B) K510D20
(TB1-5C) L504D20
L543A20N
(TB1-4B) BLU K504B20
(TB1-4D) WHT K504B20
(TB1-5B) RED K504B20
S106
START
S105
LDG LT
S104
N2 GOV
CONTR
INCR
DECR
LEFT COLLECTIVE STICKJ113P
A
B
C
J109
(TB1-12A) M522C20
(TB1-12C) M521G20
(TB1-16D) M504J20
SP3
A
D
E
F
H
(TB1-20D) BLU A510C20
(TB1-19A) M520F20
(TB1-17A) M503H20
(TB1-20B) RED A510C20
J
K
L
M
N
(TB1-19B) A508B20
(TB1-9C) A509C20
(TB1-7A) A517A20
(TB1-21B) RED A507C20
(TB1-21C) BLU A507C20
P
R
S
U
V
W
X
T
(TB5-2C) RV516C22
(TB1-3C) BLU C504A20
(TB1-2B) C506D22
JMPR
(TB1-1B) RED C505A20
(TB1-3B) RED C504A20
(TB5-1A) RV508D22
(TB1-1D) BLU C505A20
RV524A22N
PROVISIONS FOR
RIGHT CYCLIC STICK
A
B
C
D
E
F
H
J
(TB1-6D) K502B20
(TB1-6A) K510B20
(TB1-5D) L504B20
L505B20N
(TB1-4B) BLU K505C20
(TB1-4D) WHT K505C20
(TB1-5B) RED K505C20
J112P
RIGHT
COLLECTIVE STICK
G96-0020-4
INCR
DECR
S108
N2 GOV
E5
E7
E7
E9
C110A20
C108E20
C109A20
L123A20N
SP2
A
SP1
A
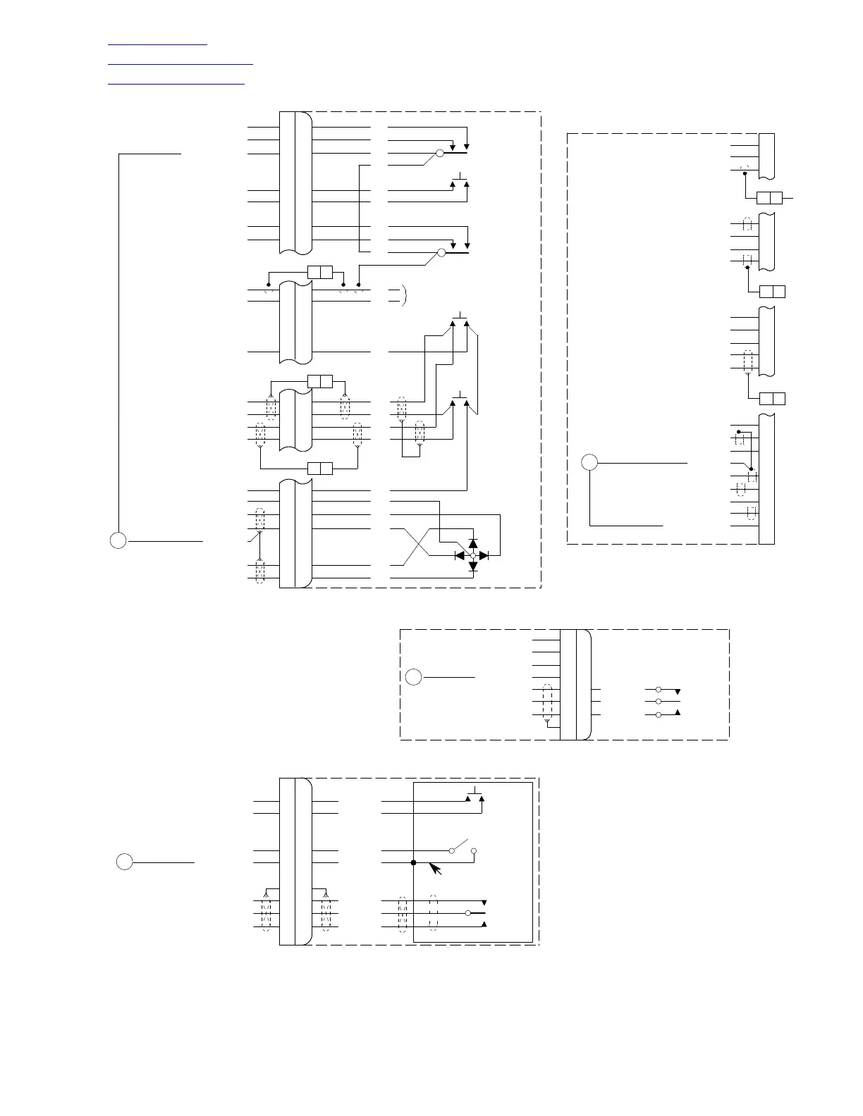
Figure 209. Fuselage Wiring Diagram (369D; 1150, 1185 & Subs
(Sheet 4 of 6)

Table of Contents

Other manuals for MD Helicopters 369D

Related product manuals