EasyManua.ls Logo

Mitsubishi Fuso Canter 2013

Mitsubishi Fuso Canter 2013
463 pages
To Next Page IconTo Next Page
To Next Page IconTo Next Page
To Previous Page IconTo Previous Page
To Previous Page IconTo Previous Page
Loading...
12-74 Simple inspection and service
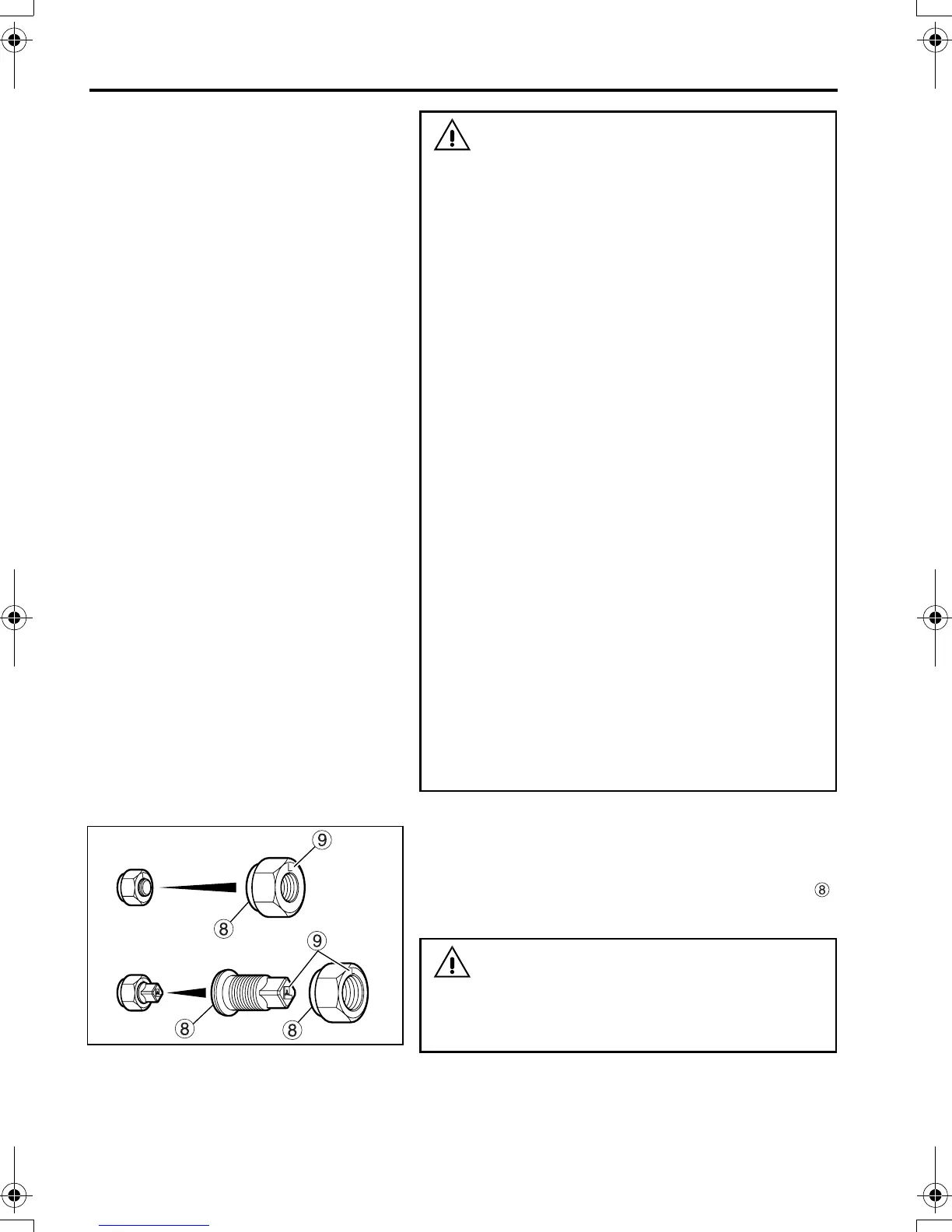
2. Mount the wheel so that the wheel bolts line up
with the bolt holes in the disc wheel. Then,
tighten the wheel nuts to hold the disc wheel in
position. If the wheel nut has a spherical end ,
direct the spherical end toward the disc wheel.
WARNING
If the above items are dirty, the nuts will
become loose during vehicle operation. If
wheel bolt or nut threads are damaged or
the disc wheel is cracked or otherwise
damaged, replace the wheel with a new
genuine part. A damaged wheel could
work loose and cause a serious accident
while the vehicle is in motion.
Do not paint disc wheel mounting sur-
faces, dual wheel mating surfaces, wheel
nut seating surfaces, and wheel hub
mounting surfaces as resulting thicker
paint film could cause the wheel nuts to
loosen up.
Be sure to use the specified types of tires
and disc wheels. Mixing bias and radial
tires adversely affects steering control and
must be avoided at all costs.
In addition, mixed use of different types of
tires can produce the following undesir-
able effects:
The ABS system cannot work as
intended.
The speedometer indicates a different
speed from the actual vehicle speed.
The DUONIC
TM
system (transmission)
cannot change gear at the optimum tim-
ing, so fuel consumption becomes
worse.
The tires may touch the frame and
steering components.
WARNING
When replacing the wheel, take care not to
damage the threads on the wheel bolts and
inner wheel nuts.
Z09310
FE_FG.book Page 74 Monday, December 19, 2011 4:22 PM

Table of Contents

Related product manuals