EasyManua.ls Logo

Panasonic SA-MAX200PH - Audio

Panasonic SA-MAX200PH
122 pages
Print Icon
To Next Page IconTo Next Page
To Next Page IconTo Next Page
To Previous Page IconTo Previous Page
To Previous Page IconTo Previous Page
Loading...
57
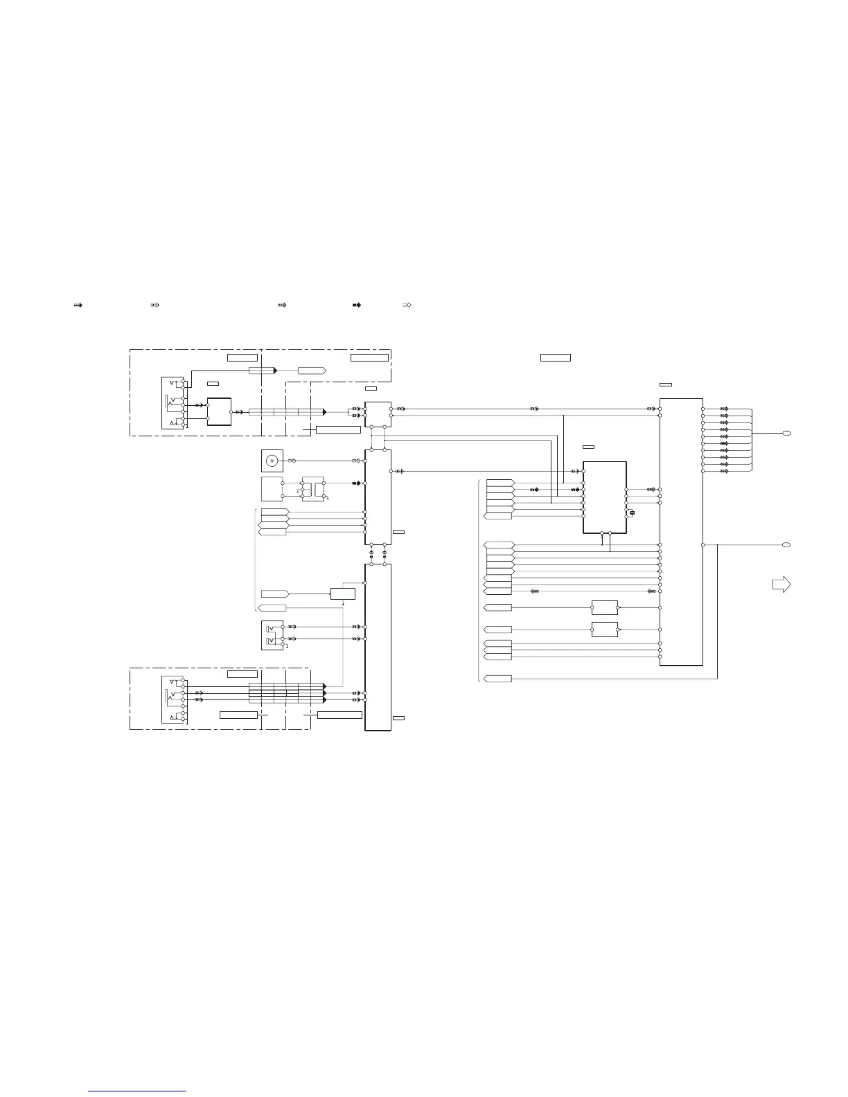
12.3. Audio
SA-MAX200PH AUDIO (1/2) BLOCK DIAGRAM
P1
1
VALID
TO AUDIO
BLOCK (2/2)
4 TUN SDO
SDATA 45
LRCK 44
BCK 43
14XOUT
13XIN
X2000
FROM/TO
SERVO & SYSTEM CONTROL
TO
SERVO & SYSTEM CONTROL
: TUNER/MUSIC PORT/AUX/MIC AUDIO INPUT SIGNAL LINE : AUDIO OUTPUT SIGNAL LINE: CD AUDIO INPUT SIGNAL LINE
MAIN P.C.B.
: FM SIGNAL LINE
DAP/DSP SDA
DAP/DSP SDA
DAP/DSP SCL
DAP/DSP SCL
20 SDA
21 SCL
DAP PDN
DAP PDN
18 PDN
DAP MUTE
DAP MUTE
19 MUTE
DAP RST
DAP RST
16 RESET
31 LRCLKO
27 SDIN4
CD I2S SDO
CD I2S SDO
7 CD SDO
CD I2S LRCK
CD I2S LRCK
9 CD LRCK
CD I2S BCLK
CD I2S BCLK
8 CD BCK
CD I2S MCLK
CD I2S MCLK
DSP RST
DSP RST
11 IC N
48 CD MCLK
16
SCL
17
SDA
19 IRQ N
DSP ERR
DSP ERR
DAP I2S LRCKO
DAP I2S LRCKO
30 SCLKO
DAP I2S BCKO
DAP I2S BCKO
15 EMO1
EMO1
EMO1
54 PWM P 5
AUTOBASS
AUTOBASS
56 PWM P 6
KIRARI IN
KIRARI IN
10 ASEL EMO2
EMO2
EMO2
29 SDOUT
DAP I2S OUT
DAP I2S OUT
DAP VALID
DAP VALID
TU SDA
FM ANT
JK2000
FM/AM RADIO
RECEIVER
VUEALLPT056
IC2000
2 FMI
TU INT
TU SCL
TU INT
MPORT SW
SCLK7
GPIO218
LCH
3
RCH
LIN RIN
13
15 16
LRCK
14
DCLK
LRCK BCLK
17
78
SDO 13
SDIO8
TU SCL
TU RST
RST5
TU RST
DIGITAL
AUDIO PROCESSOR
C1AB00004003
IC2008
24 SDIN1
22 LRCLK
23 SCLK
11 MCLK
PWM P 4 45
PWM M 4 44
PWM P 2 41
PWM M 2 40
PWM P 3 43
PWM M 3 42
PWM P 1 39
PWM M 1 38
PWM P 8 49
PWM M 8 48
VALID 37
TU SDA
NOTE: * REF IS FOR INDICATION ONLY
DIGITAL SIGNAL
PROCESSOR
C1AB00003800
IC2005
: AM SIGNAL LINE
JK2002
L2000
4
6
3
1
2
4 AMI
A/D
CONVERTER
C0FBAY000032
IC2001
13 AINL
14 AINR
SDTO 9
MCLK 6
2
1
AM ANT
Q3202
BAND-PASS
FILTER
CIRCUIT
46 PWM P 7
FAN CONTROL
FAN CONTROL
Q3200
BAND-PASS
FILTER
CIRCUIT
MIC P.C.B.
MIC P.C.B.
VOLUME P.C.B.
VOLUME P.C.B.
AUDIO
SELECTOR
C0JBAR000367
IC2002
JK2001
88
CN6103
66
CN6103
55
ZJ6300*
ZJ6300*
ZJ6300*
CN6103
1714
CN6002CN6102
1912
CN6002CN6102
2011
CN6002CN6102
MPORT R
MPORT L
MPORT SW
229
CN2004CN6001
2011
CN2004CN6001
1912
CN2004CN6001
MPORT R
MPORT L
33
CN6103 ZJ6300*
1516
CN6002CN6102
1417
CN2004CN6001
MIC
22
CN6103 ZJ6300*
MIC SW
MPORT SW
R
L
MUSIC PORT
JK6301
3
2
1
6
7
5
4
MIC SW
MIC
CIRCUIT
MIC
AMPLIFIER
C1AB00003130
IC6300
MIC VOLUME
VR6300
MIC
JK6300
MIC SW
MPORT SW
3
2
1
6
7
5
4
MIC
L01
R012
A (LSB)10
ANALOG SEL1
ANALOG SEL1
Q2012
SELECTOR
SWITCH
FROM/TO
SERVO & SYSTEM CONTROL
R114
L15
AUX IN
2
1
3
FR+ HI
FR- HI
SW+ HI(1)
SW- HI(1)
FL+ HI
FL- HI
SW+ HI(2)
SW- HI(2)
SW+ LO
SW- LO
FL DISPLAY P.C.B.
FL DISPLAY P.C.B.

Table of Contents

Related product manuals