EasyManua.ls Logo

Panasonic SA-MAX200PH - Power Supply

Panasonic SA-MAX200PH
122 pages
Print Icon
To Next Page IconTo Next Page
To Next Page IconTo Next Page
To Previous Page IconTo Previous Page
To Previous Page IconTo Previous Page
Loading...
59
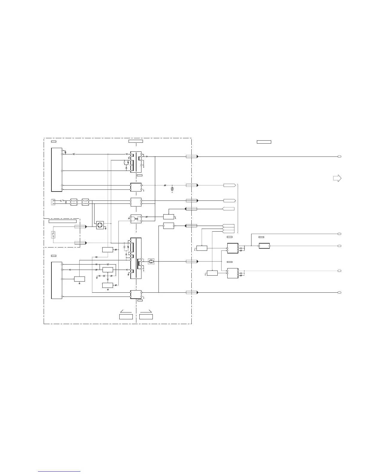
12.4. Power Supply
SA-MAX200PH POWER SUPPLY (1/2) BLOCK DIAGRAM
TO POWER SUPPLY
BLOCK (2/2)
1
3
2
4
5
NOTE: * REF IS FOR INDICATION ONLY
1
4
AC INLET
P5701
F1
DZ5701
5,6,75,6,7
CN2008CN5802
88
CN2008CN5802
+36V SENSE +36V SENSE
99
CN2008CN5802
SYS3.3V SYS3.3V
SWITCHING MODE POWER
SUPPLY CONTROL
MIP2F20MSSCF
IC5790
SHUNT
REGULATOR
C0DAZYY00039
IC5801
SUB
TRANSFORMER
T5751
MAIN
TRANSFORMER
T5701
TH5861
D5701
D5896
D5798
D5793
D5702
D5795
D5731
D5729
D5726
D5801,D5802
D5724,D5727
FEEDBACK
CIRCUIT
FEEDBACK
CIRCUIT
SYNC
CIRCUIT
SYNC
QR5810
PCONT
SWITCH
Q2023
SWITCH
Q5803
AM
BEATPROOF
CIRCUIT
Q5721
SWITCH
Q5711
CURRENT
LIMITING
SWITCH
Q5700
SWITCH
3
4
2
1
PC5701
PCONT
SWITCHING
REGULATOR
C1ZBZ0004646
IC5701
VCC
OCP/BD
FB
DRIVE
SYNC SYNC
PCONT PCONT
SYNC
TEMP DET
11
CN2008CN5802
TEMP DET
TEMP DET
TEMP DET
PCONT
SMPS BP
SMPS BP
5V REG BP
5V REG BP
15V REG BP
15V REG BP
FROM/TO
SERVO & SYSTEM CONTROL
1212
CN2008CN5802
PCONT
SMPS BP
1313
CN2008CN5802
SMPS BP
BLKBLK
TL5711*TL6*
REDRED
TL5712*TL5*
VOLT ADJ
S5701
L5701
2
3
1
4
2
3
L5702
SMPS P.C.B.
VOLTAGE SELECTOR P.C.B.
MAIN P.C.B.
2
5
4
8
5
4
1
2
8
9
7
6
11
13
14
12
FB 2
VDD 1
D5
VCC 4
CL 3
5
6
3
2
1
7
8
10
9
Q5720
VOLTAGE
REGULATOR
D5721
D5722
D5728
D5723
SECONDARYPRIMARY
PC5720
SHUNT
REGULATOR
C0DAZYY00039
IC5899
PC5799
PC5702,Q5898
1111
CN2008CN5802
DC 36V DC 36V
PW +15V
DC 36V
IC2011
+15V DC/DC
CONVERTER
C0DBAYY01594
2 VIN
PH 10
VSENSE 7
BOOT 1
PW CD 3R3V
PW +5R4V
IC2009
+3.3V VOLTAGE
REGULATOR
C0DBGYY03056
3 VIN
VOUT 2
PW +5R4V
DC 36V
IC2012
+5.9V DC/DC
CONVERTER
C0DBAYY01594
2 VIN
5 RT/CLK
Q3301
SWITCH
5 RT/CLK
PH 10
VSENSE 7
BOOT 1
PW SYS 3R3V
PW CD 3R3V
PW +5R4V
PW +15V
PW +36V

Table of Contents

Related product manuals