EasyManua.ls Logo

Panasonic SA-MAX200PH - Page 75

Panasonic SA-MAX200PH
122 pages
Print Icon
To Next Page IconTo Next Page
To Next Page IconTo Next Page
To Previous Page IconTo Previous Page
To Previous Page IconTo Previous Page
Loading...
75
A
1
2 3 4 5 6 7 8 9 10 11 12 13 14
C
D
B
E
G
H
F
A
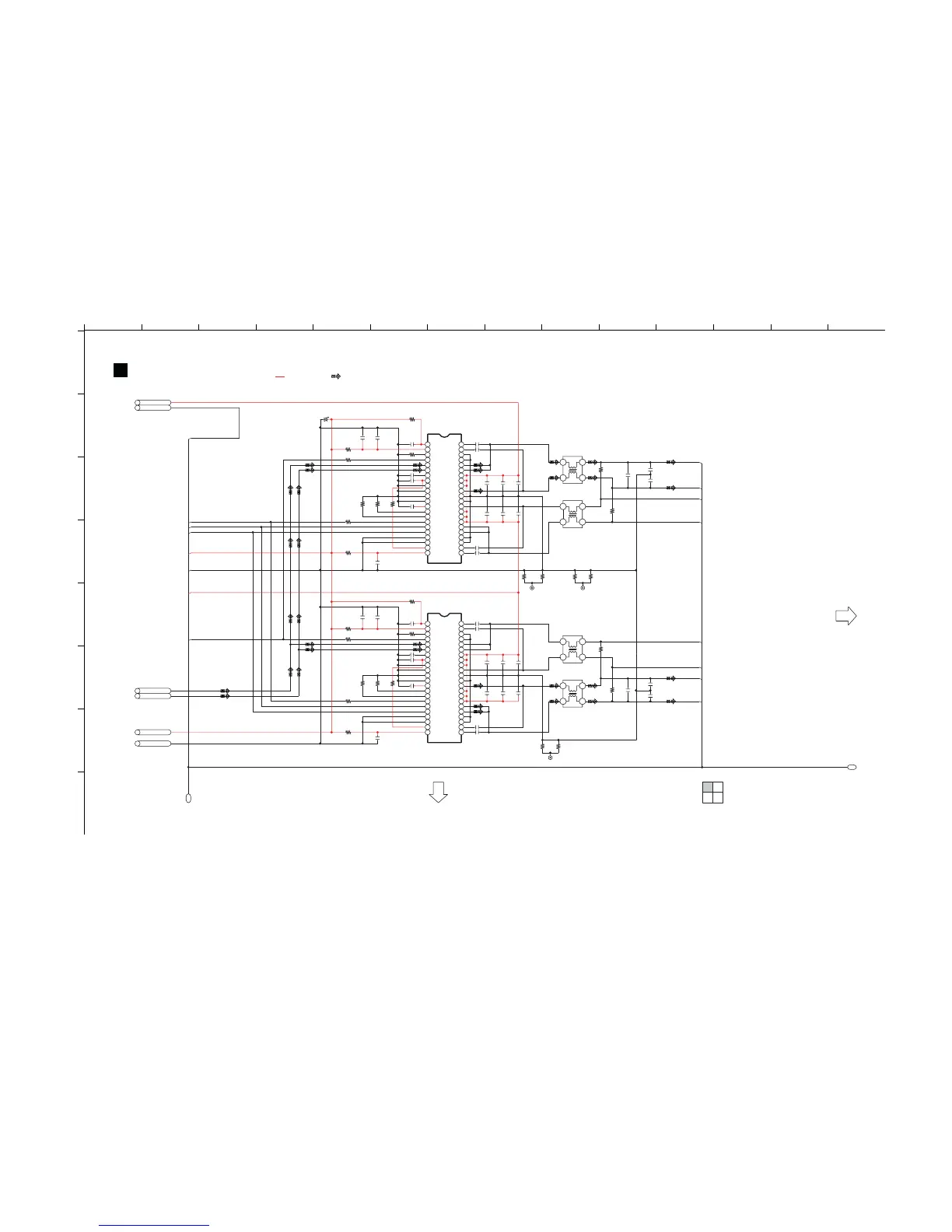
MAIN (DAMP) CIRCUIT
SCHEMATIC DIAGRAM - 11
SA-MAX200PH MAIN (DAMP) CIRCUIT
2/4
4/4
1/4
3/4
TO MAIN (DAMP)
CIRCUIT (2/4)
TO MAIN (DAMP)
CIRCUIT (3/4)
P1
P1
: +B SIGNAL LINE : AUDIO OUTPUT SIGNAL LINE
MI: MAIN (MICON): SCHEMATIC DIAGRAM - 5 ~ 10
2
43
1
G0C100M00009
L2505
SP_SW2+(2)
SP_SW2-(2)
C2612
0.22
0
R3653
C2611
0.22
C2757
0.47
SP_SW+(2)
SP_SW-(2)
2
43
1
G0C100M00009
L2504
C2500
16V33
R2631
0
R2632
0
C2727
C2730
0.1
R3664
10
R2633
100
R3612 0
10
C2729 0.1
0.1
0.1
C2728
R2634 22K
R3663
C2731 0.1
PW_+36V
DAP_VALID
C2726
0.1
R2635 10
R3645 100
C2725
10
C2748
0
R3654
C2732
C2733
0.033
0.033
C2749
C2740
C2741
C2742
C2743
110.1
110.1
C2735
C2734
0.033
0.033
43
11
9
10
34
36
35
12 33
6
5
39
38
41
40
8
7
37
2322
20
18
16
14
13
15
17
19
31
32
28
26
25
27
30
29
21 24
3
2
1
4
42
44
IC2504
OUT_D
OUT_D
PVDD_CD
/FAULT
/OTW
M1
/CLIP
M3
M2
INPUT_C
GVDD_CD
INPUT_D
GND
GND
GND
GND
PVDD_ABDVDD
GND
GND
INPUT_B
VDD
/RST
OC_ADJ
INPUT_A
GVDD_AB
C_START PVDD_AB
BST_B
BST_A
OUT_A
OUT_A
AVDD
GND
GND
OUT_C
GND
BST_D
GND
PVDD_CD
BST_C
PVDD_AB
OUT_B
PVDD_CD
2
43
1
G0C100M00009
L2501
SP_SW+(1)
SP_SW-(1)
K2502
0
K2504
0
0
R3657
ZJGND_HS5
ZJGND_HS4
C2607
0.22
0.22
C2608
C2754
0.47
K2501
0
K2503
0
SP_SW2+
SP_SW2-
2
43
1
G0C100M00009
L2500
R2613
0
R2614
0
C2509 0.1
C2524
0.1
R3660
10
R2612
100
DAMP_OTW
DAMP_CLIP
DAMP_FAULT
DC_DET_AMP
R3623 0
10
C2522 0.1
0.1C2523
R2524 22K
R3659
C2521 0.1
DGND
PW_+12V
C2508
0.1
R2503 10
R3641 100
C2504
10
C2572
1
0
R3658
0
R3655
ZJGND_HS1
0
R3656
C2548
C2547
0.033
0.033
C2571
1
C2564
1
C2561
1
C2563
0.1
C2562
0.1
C2545
C2546
0.033
0.033
43
11
9
10
34
36
35
12 33
6
5
39
38
41
40
8
7
37
2322
20
18
16
14
13
15
17
19
31
32
28
26
25
27
30
29
21 24
3
2
1
4
42
44
C1AB00004014
C1AB00004014
IC2501
OUT_D
OUT_D
PVDD_CD
/FAULT
/OTW
M1
/CLIP
M3
M2
INPUT_C
GVDD_CD
INPUT_D
GND
GND
GND
GND
PVDD_ABDVDD
GND
GND
INPUT_B
VDD
/RST
OC_ADJ
INPUT_A
GVDD_AB
C_START PVDD_AB
BST_B
BST_A
OUT_A
OUT_A
AVDD
GND
GND
OUT_C
GND
BST_D
GND
PVDD_CD
BST_C
PVDD_AB
OUT_B
PVDD_CD
DIGITAL AMPLIFIER
DIGITAL AMPLIFIER
DGND
MI
SW-MI
SW+
MI
DC_DET_AMP
MI
PW_+36V
MI
PW_+12V
MI

Table of Contents

Related product manuals