EasyManua.ls Logo

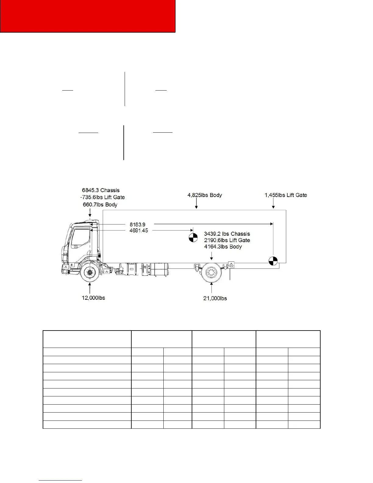
Peterbilt 220 - Figure B-5. Balanced Body Loaded: Cgf 184.7 in (4691.45 MM) from Front Axle

Peterbilt 220
85 pages
Print Icon
To Next Page IconTo Next Page
To Next Page IconTo Next Page
To Previous Page IconTo Previous Page
To Previous Page IconTo Previous Page
Loading...
B-7
Appendix B
Weight Distribution
Model 220 sample, Assume that the payload is evenly distributed. Freight that is distributed evenly is referred to as
a
“water level” load. Our payload total is 14,500 lb. Since it is an evenly distributed “water level” load, its CG loca-
tion will be the same as the CG location of the van body. See Figure B5.
CGf =
1
2
BL + 72
1
(168)
+ 72 = 156 in.
2
Using CGf = 156 in equations 1 and 2:
Lr =
CGf
WB
X L
156
214
(14,500) = 10,570 lbs (4794.5 kg)
Lf = L - Lr 14,500 10,570 = 3,929.9 lbs (1782.5 kg)
Figure B-5. Balanced Body Loaded: CGf 184.7 in (4691.45 mm) from front axle.
Item
Front Axle
(FA) lb (kg)
Rear Axle
(RA) lb (kg)
Total lb (kg)
Chassis
6845.3
3104.98
3439.2
1559.995
10284.5
4664.971
Fuel 45 Gal Std, Tank
206.2
93.5307
108.7
49.30549
314.9
142.8362
Tare Weight
7051.5
3198.51
3547.9
1609.3
10599.4
4807.807
Liftgate
-735.6
-333.66
2490.6
1129.717
1755
796.0546
Van Body
660.7
299.688
4164.3
1888.895
4825
2188.583
Driver
190.65
86.4774
9.34
4.236553
199.99
90.71394
Curb Weight
7167.25
3251.01
10212.14
4632.149
17379.39
7883.159
Payload
3929.9
1782.57
10570
4794.471
14499.9
6577.044
Total Ground Weight
11097.15
5033.58
20782.14
9426.62
31879.29
14460.2
Chassis Axle Ratings
12000
5443.11
21000
9525.44
33000
14968.55
Table B-2 Model 220 Weight Distribution and Chassis Rating Calculation (sample)

Table of Contents

Other manuals for Peterbilt 220

Related product manuals