EasyManua.ls Logo

Priva Compass - Page 59

Priva Compass
142 pages
Print Icon
To Next Page IconTo Next Page
To Next Page IconTo Next Page
To Previous Page IconTo Previous Page
To Previous Page IconTo Previous Page
Loading...
Article numberConfiguration
3771009Meteorological station, including:
Wind speed sensor
Wind direction sensor
Outside temperature sensor
Rain sensor
3771024Meteorological station, including:
Wind speed sensor
Outside temperature sensor
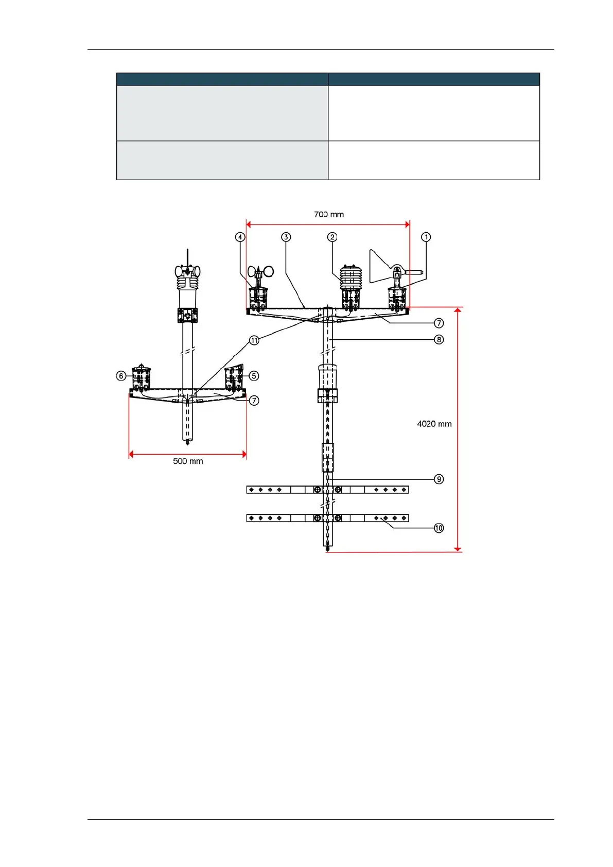
Meteorological station
7. Support1. Wind direction sensor
8. Top mast component (160 cm)2. Outside temperature sensor
9. Bottom mast component (160 cm)3. Reserve position
10. Wall bracket4. Wind speed sensor
11. Clamping blocks5. Rain sensor
6. Linear light sensor
57Installing Priva Compass - 00.014
Meteorological station

Table of Contents