EasyManua.ls Logo

Redback SH5000 - System description; Major components and dimensions

Redback SH5000
64 pages
Print Icon
To Next Page IconTo Next Page
To Next Page IconTo Next Page
To Previous Page IconTo Previous Page
To Previous Page IconTo Previous Page
Loading...
Introduction
8 Installation Manual - Redback Smart Hybrid System - v2.0
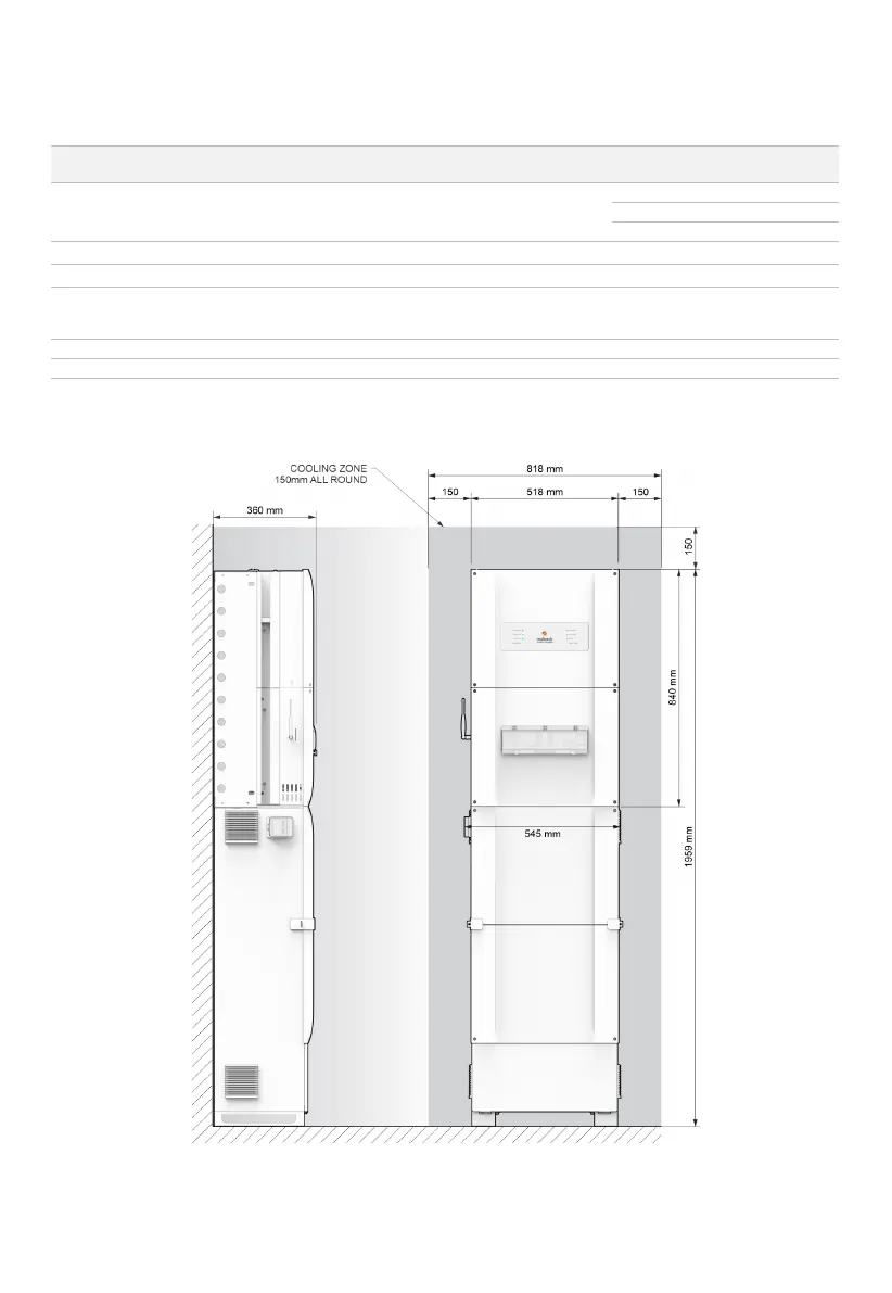
1.2 Dimensions and weights
ITEM
CAPACITY
(NOMINAL)
WIDTH
(MM)
HEIGHT
(MM)
DEPTH
(MM)
SHIPPING MASS
(KG)
COMPONENT MASS
(KG)
Inverter
na
518
840
360
57
Mounting Frame:
3.5
BoS:
12.3
Inverter:
30.8
Enclosure
14.2kWh
545
1125 min
348
45
38.0
Combined
na
545
1960 min
360
-
-
PYLONTECH BATTERIES
US2000
2.4kWh
442
410
89
-
24
US3000
3.55kWh
442
420
132
-
32
Excluding batteries. Excludes Wi-Fi antenna and padlock hoops. Installed height varies slightly.
1.3 Installation space

Table of Contents

Other manuals for Redback SH5000

Related product manuals