EasyManua.ls Logo

Rhotheta RT-300 - Mechanical Characteristics; Dcu

Rhotheta RT-300
79 pages
Print Icon
To Next Page IconTo Next Page
To Next Page IconTo Next Page
To Previous Page IconTo Previous Page
To Previous Page IconTo Previous Page
Loading...
User Manual Bearing System RT-300
Issue: 2017/06/27 [Rev 1.04.c] Page 15 of 79 12-9-1-0013-9-2-0001-3-1-60
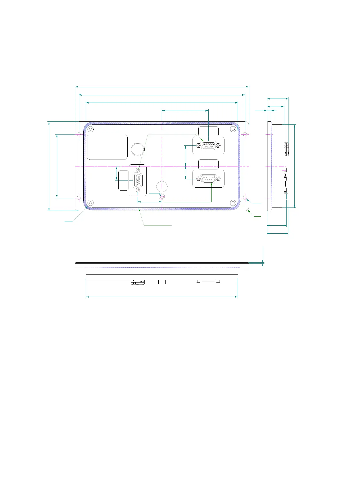
4.2 Mechanical Characteristics
4.2.1 DCU
Weight: ca. 700 g
Dimensions: see Fig. 3
Protection of housing: IP 67
220
210
192
192
80
113
16 26
58.85
5.5
105
R8
45°x1
D-Sub connector male
rubber sealing
R5
30.44
17.86
ø4.5
M5
D-Sub connector female
24.8
26.8
21.8
27.8
Fig. 3

Table of Contents