EasyManua.ls Logo

Siemens 3UG4 - Wiring Examples

Siemens 3UG4
410 pages
Print Icon
To Next Page IconTo Next Page
To Next Page IconTo Next Page
To Previous Page IconTo Previous Page
To Previous Page IconTo Previous Page
Loading...
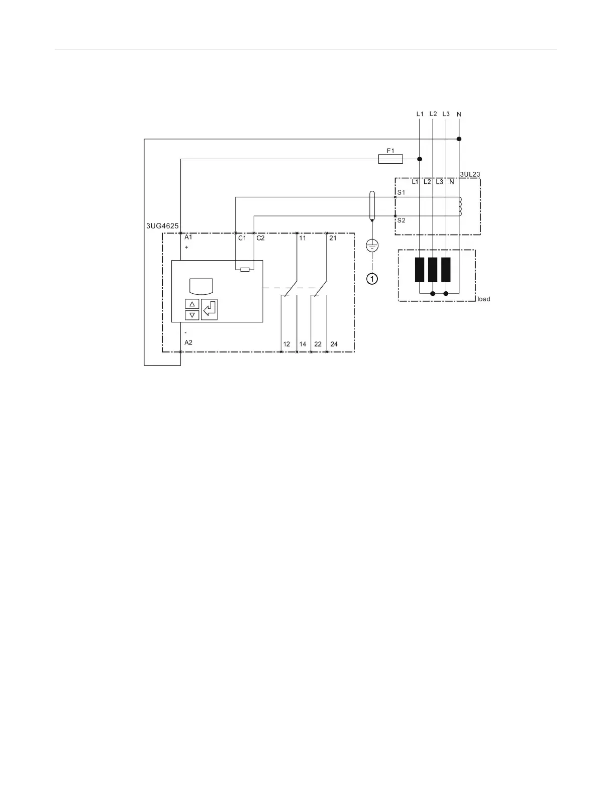
3UG4625 residual current monitoring relay with 3UL23 transformer
8.6 Circuit diagrams
3UG4 / 3RR2 monitoring relays
Manual, 05/2016, NEB927043002000/RS-AC/004
207
8.6.2
Wiring examples
Cable shielding recommended
Image 8-1 Wiring diagram of 3UG4625 with 3UL23

Table of Contents

Related product manuals