EasyManua.ls Logo

Sigma 8KBS - Layout Plan

Sigma 8KBS
131 pages
Print Icon
To Next Page IconTo Next Page
To Next Page IconTo Next Page
To Previous Page IconTo Previous Page
To Previous Page IconTo Previous Page
Loading...
Refrigerated Centrifuge Sigma 8KS
Refrigerated Centrifuge Sigma 8KBS
11 Appendix
Version 08/2012, Rev. 2.5 of 02/07/2018 sb
125 / 131
Translation of the original operating manual, part no. 0702502
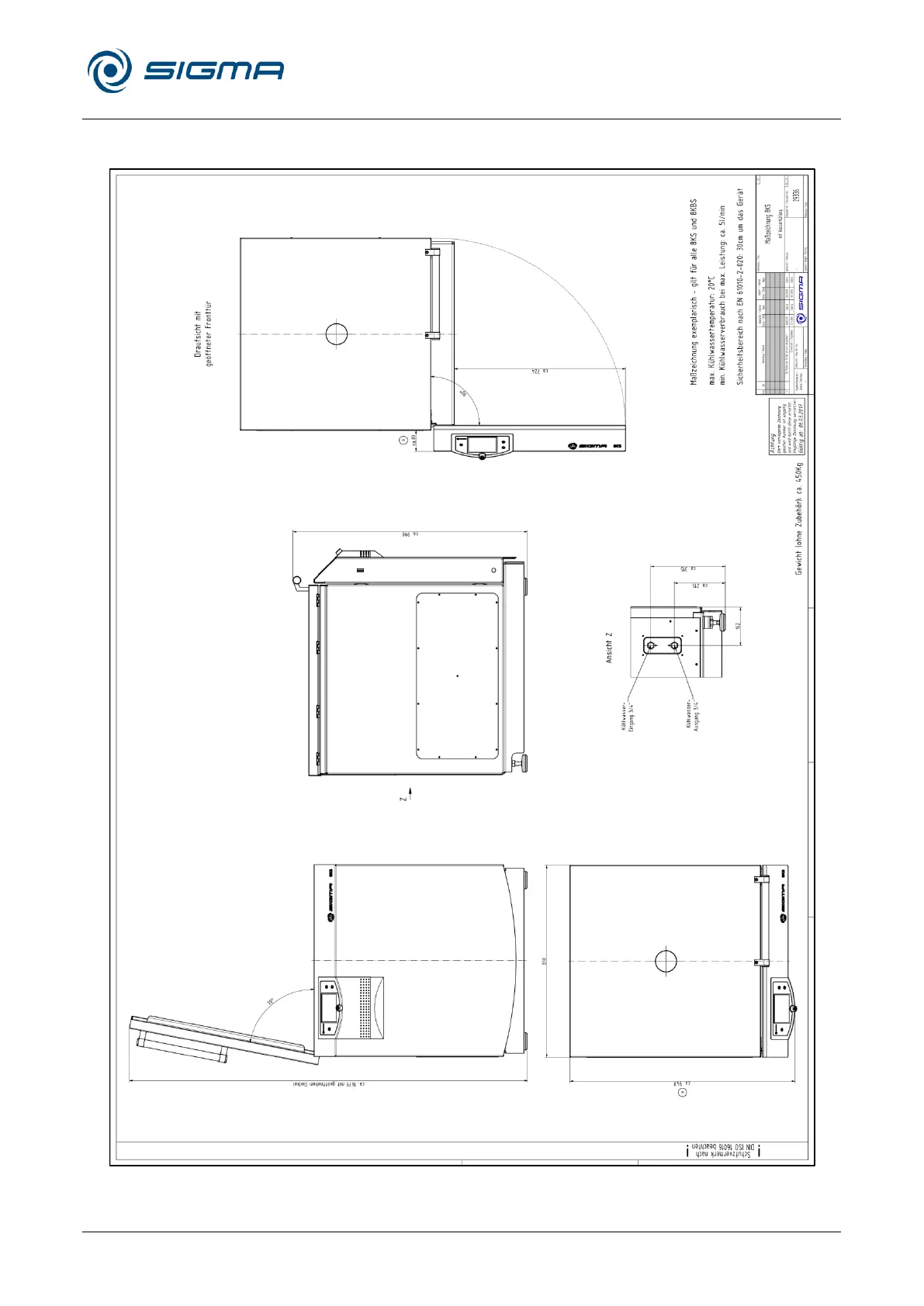
Pos: 258 /100 Sig ma/110 BA Ze ntrifugen Sig ma (Projekte)/8KS _8KBS_8KHBS/ 110 Anhang/1 10-0070 A ufstellzeichnung @ 29\mod_1 40532750494 7_68.docx @ 19 9997 @ 2 @ 1
11.9 Layout plan

Table of Contents

Related product manuals