EasyManua.ls Logo

stertil ST1175 - Electrical Diagram for the Secondary Control Box

Default Icon
108 pages
Print Icon
To Next Page IconTo Next Page
To Next Page IconTo Next Page
To Previous Page IconTo Previous Page
To Previous Page IconTo Previous Page
Loading...
Operation & Service Manual (VA) 101 ST1175
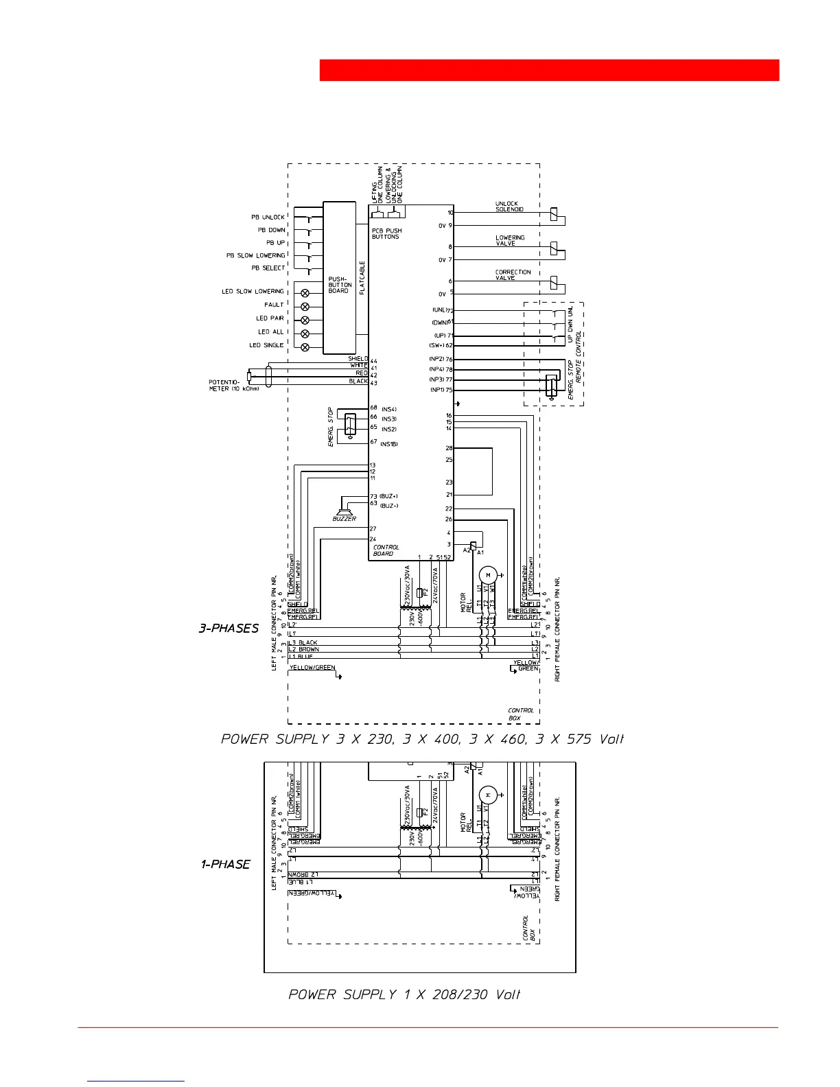
12.3 Electrical diagram for the secondary control box
Electrical diagram (secondary control box)

Table of Contents

Related product manuals