EasyManua.ls Logo

stertil ST1175 - Dimensional Drawing

Default Icon
108 pages
Print Icon
To Next Page IconTo Next Page
To Next Page IconTo Next Page
To Previous Page IconTo Previous Page
To Previous Page IconTo Previous Page
Loading...
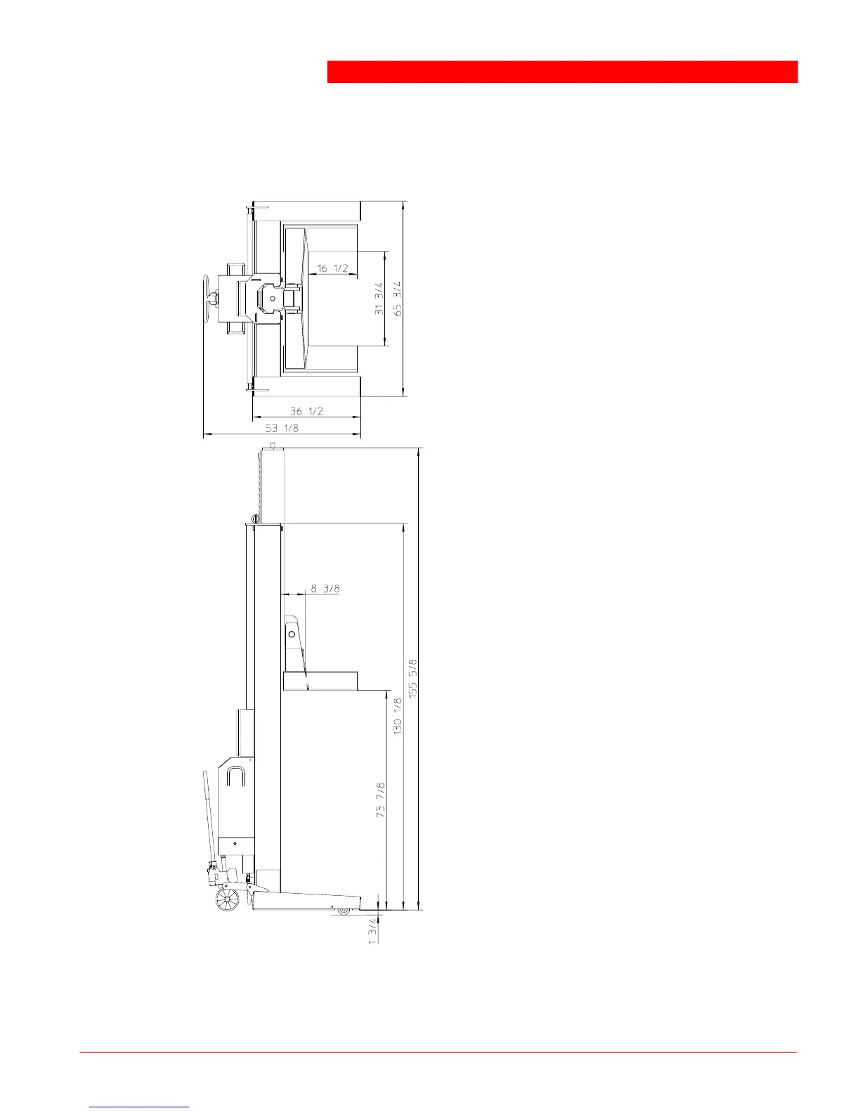
Operation & Service Manual (VA) 103 ST1175
12.5 Dimensional drawing

Table of Contents

Related product manuals