EasyManua.ls Logo

Tokheim QUANTIUM 410 - 3 Drawings; Dispenser Dimensions; Standard Head (to August 2011)

Tokheim QUANTIUM 410
102 pages
Print Icon
To Next Page IconTo Next Page
To Next Page IconTo Next Page
To Previous Page IconTo Previous Page
To Previous Page IconTo Previous Page
Loading...
Page 3-2 Document Ref 909342-001 Rev 11
Drawings Quantium 410 Installation Manual
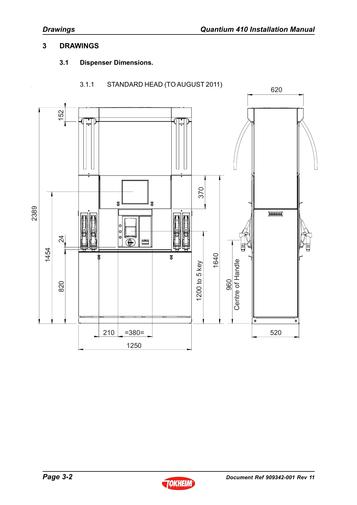
3 DRAWINGS
3.1 Dispenser Dimensions.
520
960
Centre of Handle
1640
370
152
2389
1454
1200 to 5 key
24820
210 =380=
1250
620
3.1.1 STANDARD HEAD (TO AUGUST 2011)

Table of Contents

Related product manuals