EasyManua.ls Logo

Tokheim QUANTIUM 410 - TQC -VGA Media Head (from September 2011)

Tokheim QUANTIUM 410
102 pages
Print Icon
To Next Page IconTo Next Page
To Next Page IconTo Next Page
To Previous Page IconTo Previous Page
To Previous Page IconTo Previous Page
Loading...
Document Ref 909342-001 Rev 11 Page 3-3
Quantium 410 Installation Manual Drawings
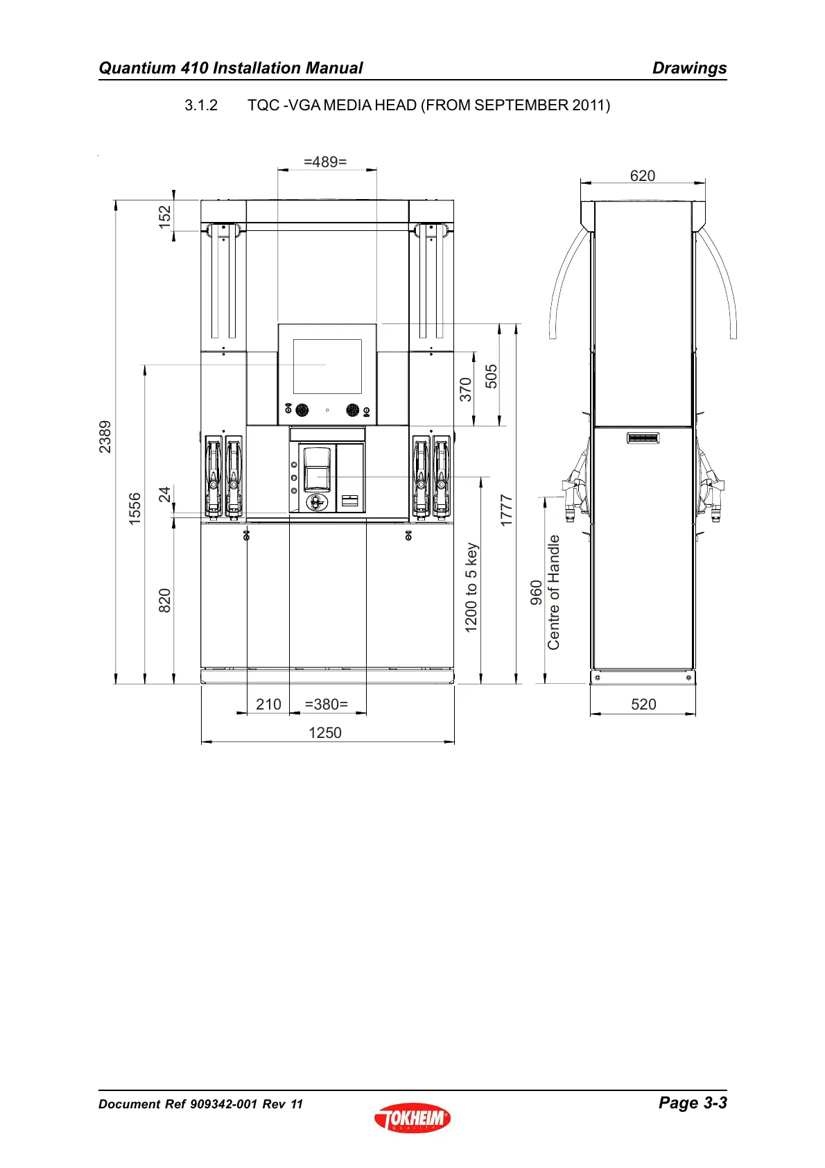
3.1.2 TQC -VGA MEDIA HEAD (FROM SEPTEMBER 2011)
152
2389
1556
1200 to 5 key
24820
210 =380=
1250
520
620
=489=
1777
370
505
960
Centre of Handle

Table of Contents

Related product manuals