EasyManua.ls Logo

Valtra 6850 - Cab and Shields

Valtra 6850
1361 pages
Print Icon
To Next Page IconTo Next Page
To Next Page IconTo Next Page
To Previous Page IconTo Previous Page
To Previous Page IconTo Previous Page
Loading...
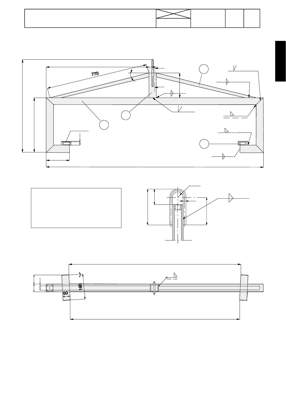
1. 50 x 50 x 5
2. 50 x 50 x 5
3. 30 x 30 x 3
4. 50 x 25 x 2,5
Lifting eye ø 12 mm
1301
Model Code Page
102. Locally prepared tools
8. 11. 1990
6000--8750 102 9
80. Cab and shields
ET 894 110 Lifting tool for cab
1260
1290
175
1630
774
50 70
30
10
(4,5˚)
93
167
70
R25
130
ø12
415
665
(13,5 ast.)
180
A
A
A --- A
25
3
19
1
2
3
4
Kumi
a5
97
a5 97
5 50
a5
50
50a5
a3
50
50
a3
a3 50
a3
a3
110
110
a5
50
5
70
Rubber
Gummi

Table of Contents

Related product manuals