EasyManua.ls Logo

Wolf Wall Ovens - Page 81

Wolf Wall Ovens
83 pages
Print Icon
To Next Page IconTo Next Page
To Next Page IconTo Next Page
To Previous Page IconTo Previous Page
To Previous Page IconTo Previous Page
Loading...
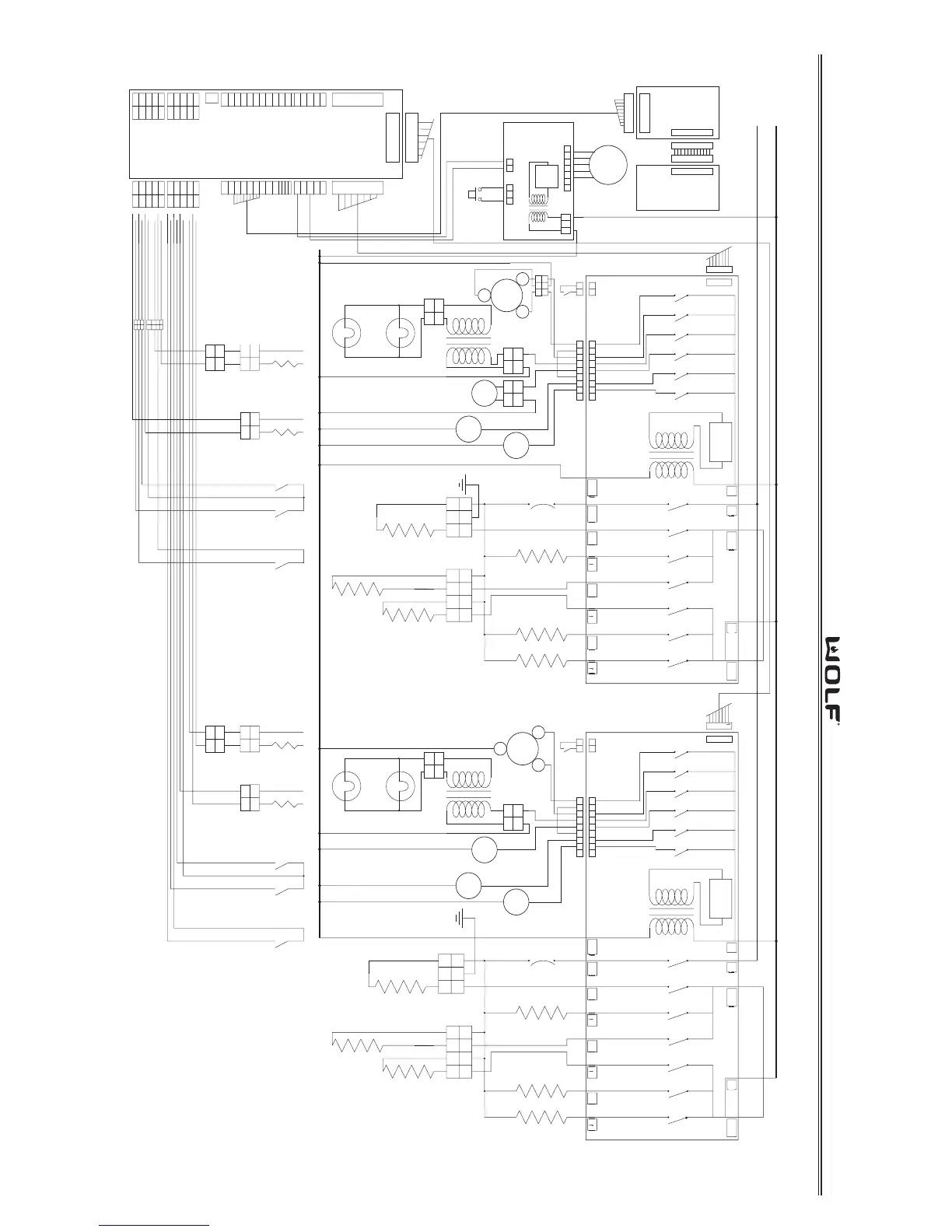
WWaallll OOvveennss
Wiring Diagrams
7-5
L1
L2
Upper
Oven
Relay
Board
Lower
Oven
Relay
Board
K1K1
NONO
K2K2
NONO
K3K3 K4K4 K5K5 K6K6
NONO NONO NONO NONO
K7K7
NONO
Relay Board
Logic
Relay Board
Logic
K9K9 K10K10 K11K11 K12K12 K13K13 K14K14
NONO NONO NONO NONO NONO NONO
1
22
1
2
2
1
22
1
11
1
2
22
2
3
33
3
4
44
4
5
55
5
6
66
6
7
77
7
8
88
8
9
99
9
J3J3 J2J2
11
11
22
22
11 22 33 44
1
1
3
3
Molex Sabre
Connector
Molex Sabre
Connector
Pizza
Element
Receptacle
Pizza
Element
Receptacle
Pizza El.
3500W
240V
Pi z z a E l.
3500W
240V
Outer Bake El.
1650W
240V
Outer Bake El.
1650W
240V
Inner Bake El.
1850W
240V
Inner Bake El.
1850W
240V
Broil El.
3600W
240V
Broil El.
3600W
240V
R Cvt El.
2400W
240V
R Cvt El.
2400W
240V
L Cvt El
2400W
240V
L Cvt El
2400W
240V
Bi-metal
Thermal
cutout
Bi-metal
Thermal
cutout
1
4
2
Upper
Cooling
Fan Motor
1
4
2
Lower
Cooling
Fan Motor
L.Cvt
Fan
L.Cvt
Fan
R.Cvt
Fan
R. Cvt
Fan
Motor
Door
Lo c k
Motor
Door
Lo c k
20W Oven Light20W Oven Light
20W Oven Light20W Oven Light
NEUTRAL
1
12
1
12
1
12
1
12
1
23
4
6
1
1
11
22
22
22 22
11
33
1
3
1
3
1
2
J4
J1
Stepper
Motor
J2 J5
Push Button
Activation
Switch
1
1
9
9
1
2
3
4
5
6
7
8
9
1
22
1
2
3
4
5
6
8
9
7
G
GND
G
GND
1
2
3
4
5
6
8
9
10
1
2
3
4
5
6
8
9
10
1
2
3
4
5
6
8
9
10
1
2
3
4
5
6
8
9
10
1
1
10
6
10
4
3
2
9
5
8
2
3
5
6
8
4
9
1 12 2
Meat
Pr o b e
Sensor
Meat
Probe
Sensor
Meat
Probe
Receptica l
Meat
Probe
Receptical
J2
J3
RTD
Sensor
RTD
Sensor
1 12 2
Molex
Connector
Molex
Connector
1 12 2
2 21 1
Amp
Connector
Amp
Connecto r
MDL
Unlatched
Switch
MDL
Unlatched
Switch
MDL
La t c h e d
Switch
MDL
Latched
Switch
9 pin Amp Connector
Door
Switch
Door
Switch
11 22
11 22 8
87
7
2pin
Amp Conn.
9pin
Amp C onn.
2pin
Amp
Conn
9pin
Amp
Conn
2pin
Amp
Conn
1
12
23
3
1
1
2
2
1
1
2
2
3 pin Molex
Saber Conn.
12341234
Lower
Oven
Sensors
Upper
Oven
Sensors
P/N802789
Revision A
Fan Apparency
Switch
Fan Apparency
Switch
L1
L1
L1
L1
2
L2
2
2
L2
2
B
L
1-
B
B
B
L
1-
B
B
L1-
A
-A
L1-
A
-A
Oven
Controller
Upper
Oven
Display
Lower
Oven
Display
Motor
Control
Logic
U
NE
U
U
B
DLB
B
Pr
6
P
r6
r5
Pr
Pr
4
P
r4
r3
Pr
Pr
2
P
r2
r1
1
Pr
U
NE
U
U
B
DLB
B
Pr
6
P
r6
r5
Pr
Pr
4
P
r4
r3
Pr
Pr
2
P
r2
r1
1
Pr
J11A
J11B
J5
J4
J1 J1
NO
NONONO
NO
NO
Stepper
Motor
Control
Board
Wolf Appliance Company, LLC
30" Double Wall Oven
Schematic Diagram
Models: DO30F/S, DO30U/S
DO30U/P, DO30U/B
DO30

Table of Contents

Related product manuals