EasyManua.ls Logo

Wolf Wall Ovens - 36 Single Wall Oven Wiring Diagram

Wolf Wall Ovens
83 pages
Print Icon
To Next Page IconTo Next Page
To Next Page IconTo Next Page
To Previous Page IconTo Previous Page
To Previous Page IconTo Previous Page
Loading...
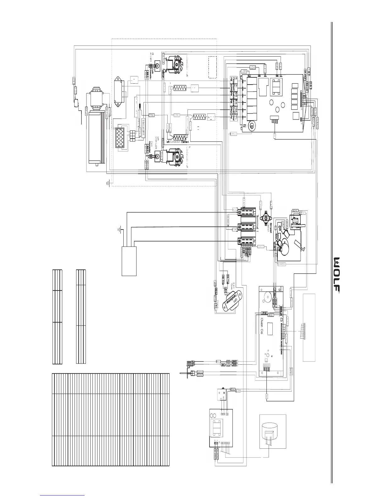
WWaallll OOvveennss
Wiring Diagrams
7-6
P/N802788
Revision A
Single Main Harness
Labels Name
Wire
1-E1 Relay Board Logic - L1
UL3321 14ga Blk
2-E2 Relay Board Logic - N
UL3321 14ga wht
3-E12 Element - L2
UL3321 14ga red
4-E11 El. DLB(L2)
UL3321 14ga red
5-E7 Relay Board Jum per
UL3321 14ga Blk
6-PizzaPR6 Pizza El.
UL3071 14ga Blk/Pur
7-RCvtEPR5 R. Convect El.
UL3071 14ga Blk/Blu
8-ObakePR4 OuterBake El.
UL3071 14ga Blk/Grn
9-InbakePR3 InnerBake El.
UL3071 14ga Blk/Yel
10-LCvtPR2 L. Convect El.
UL3071 14ga Blk/Or
11-BroilPR1 Broil El.
UL3071 14ga Blk/Red
12-E14 Element - L1
UL3321 14ga Blk
13-L2 L2 daisy chain
UL3071 14ga Red
14-L2 L2 daisy chain
UL3071 14ga Red
15-L2 L2 daisy chain
UL3071 14ga Red
16-L2 L2 daisy chain
UL3071 14ga Red
17-L2 L2 daisy chain
UL3071 16 GA RED
18-L2 L2 daisy chain
UL3071 16 GA RED
19-MP Meat Probe
UL5335 18ga white
20-MP Meat Probe
UL5335 18ga white
21-Mn MDL Sw Common
UL3321 18ga brn
22-MU MDL Unlatched Sw
UL3321 18ga brn
23-ML MDL Latched Sw
UL3321 18ga pur
24-RTD RTD
UL3321 18ga wht
25-RTD RTD
UL3321 18ga wht
26-DS Door Switch
UL3321 18ga yel
27-DS Door Switch
UL3321 18ga yel
28-HF Hi speed Cooling Fan - L1
UL3321 18ga Blk
29 Relay Board Jumper
UL3321 18ga Blk
30-LF Low speed Cooling Fan - L1
UL3321 18ga Lt. Blue
31-Tns Light Transformer - L1
UL3321 18ga Blk
32-MDL MDL - L1
UL3321 18ga Blk
33-LCF Left Convect Fan
UL3321 18ga Orange
34-RCF Right Convect Fan
UL3321 18ga Blue
35-MDL MDL - N
UL3321 18ga wht
36-Cool Cooling Fan - N
UL3321 18ga wht
37 MDL Sw Jumper
UL3321 18ga pur
38-MRCP Rotating Control Panel - L1
UL3321 18 ga Black
39-MRCP Rotating Control Panel - N
UL3321 18 ga white
40-In Rotating CP Inhibit Signal
UL1430 Black
41-Lt Light with fuse
UL3321 18ga Red
42-Lt Light
UL3321 18ga Red
43-Lt Light
UL3321 18ga Blue
44-Lt Light
UL3321 18ga Blue
45-CFn Convect fan - N
UL3321 18ga wht
46-CFn Convect fan - N
UL3321 18ga wht
47-In Rotating CP Inhibit Signal
UL1430 White
48-Tns Light Transformer - N
UL3321 18ga White
49-Gnd Pizza Ground
UL3321 14ga grn
50 RBtoOC
UL1430 24ga Black
Single Fan Harness
Meat Probe Ext.Harness
Labels N am e Wire
1-S F Single Fan U L3321 18ga blue
2-S F Single Fan U L3321 18ga blue
Labels Name Wire
1-MP Meat Probe Extension UL5335 18GA W HITE
2-MP Meat Probe Extension UL5335 18GA W HITE
1
1
1
2
2
3
3
467
J4
J5
J2
12345678 1 2
J2J3
J1
J1
Upper Oven Display
Fl
at
Cabl
e
Motor Cable
F
u
N
47-I
47-I
n
n
47-In
47-In
40-In
40 In
4pin
Connector
234
4
321
1
Ou
t
er
Bake Element
n
n
er
Bake Element
Pizza Element
Receptacl e
Cooling Fan
Righ
tC
ht
o
nv
ec
ti
o
n
E
l
e
m
e
nt
Right
Convection
Fa
n
L
eft
Le
Convection
Fa
n
O
v
en
Broi
E
il
lement
El
Ri
g
O
v
e
Fan Apparency Switch
1
2
2
o
n
n
.
Motor Door
Lock
Lig
Lig
T
T
56
56
50
50
12-E14
12 E14
4
13-L2
13-L2
13-
13-
14-L2
14-L2
15-L
15-L
15-L2
15 L2
16-L
16-L
18-L2
2
2
32-MDL
32-MDL
6-
Pi
a
zza
z
a
iz
Pr
6
6
r6
7-
Rcvt
c
5
EPR5
P
5
8-Oba
8Ob
ke
k
Pr
P
4
4
r4
4
2
2
10-LCvtEPR
10 LCvtEPR
2
11-
1
Broi
r
il
Pr
r
1
r1
4-E
4E
4E
45-CFn
45-CFn
t
t
-M
M
L
L
D
D
24-RTD
24 RTD
D
25-RTD
25 RTD
D
26-D
26 D
S
S
27-D
27 D
S
S
27-
27
12-E14
12 E14
1-E1
1E1
2
2
3-E12
3-E12
2
32-MDL
32 MDL
38-MRC
38 MRC
P
P
P
P
P
CP
CP
P
P
P
P
P
Relay Board (RB)
ntro
l
Board (CB)
Rotating Control
Panel Motor
Stepper Motor
Control Board
Push button
Activation Switch
B
l
ock
L1
L2
N
GND
Power
Supply
2-M
2M
P
P
P
Backview
of Oven
Wolf Applaince Company, LLC
36" Single Wall Oven
Wiring Diagram
Models: SO36U/S
SO36U/P, SO36U/B
SO36

Table of Contents

Related product manuals