EasyManua.ls Logo

YASKAWA CACR-JU series - Page 110

YASKAWA CACR-JU series
340 pages
Print Icon
To Next Page IconTo Next Page
To Next Page IconTo Next Page
To Previous Page IconTo Previous Page
To Previous Page IconTo Previous Page
Loading...
5 Peripheral Devices
5.5.3 External Dimensions
5-20
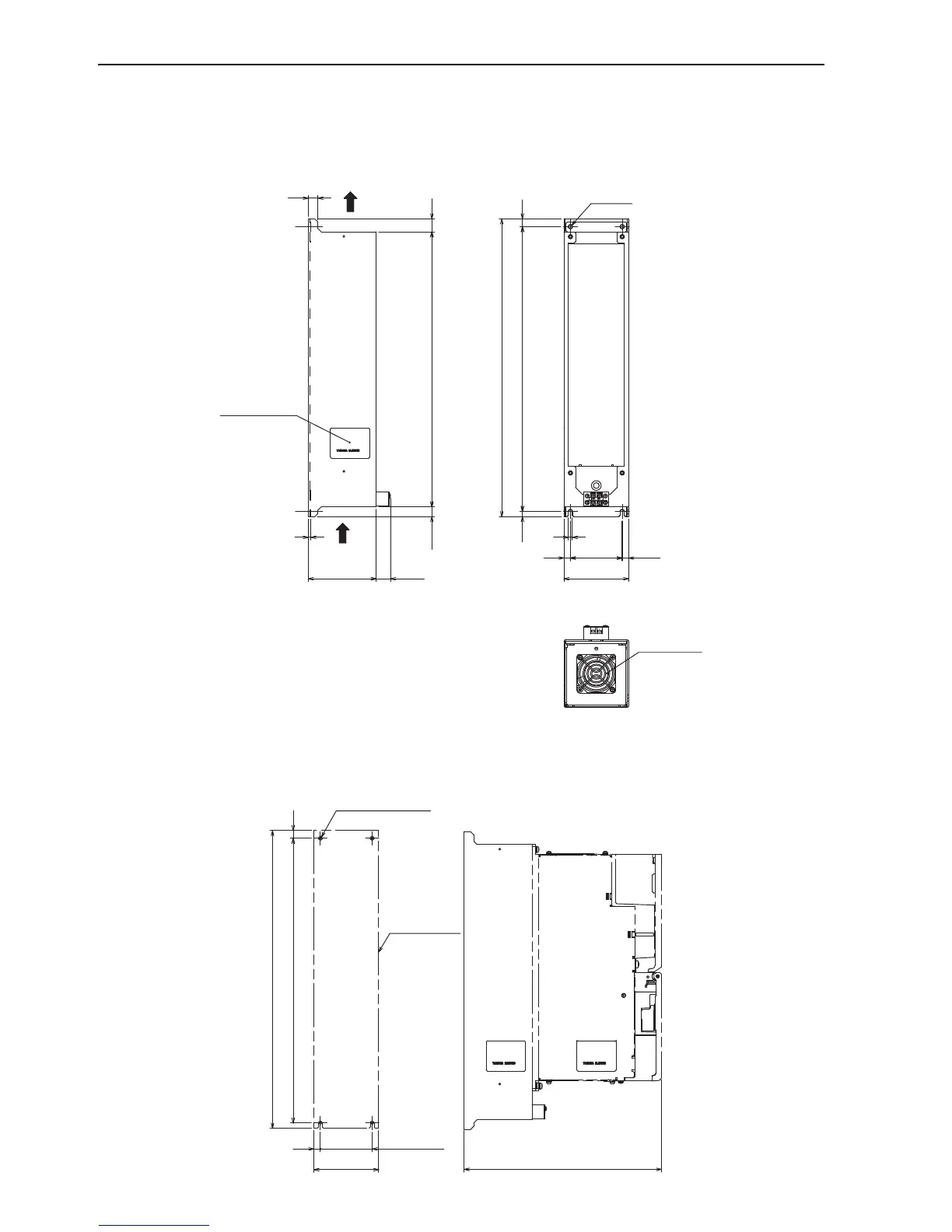
(3) Model: JUSP-JUBM100AA
12
460
440
(8)
6
10 (10)80
100
20
15
425
(15)
4
105 (23)
2-6 Dia.
Cooling Fan
Air Flow
Nameplate
Air Flow
Unit: mm
Approx.Mass: 2.8 kg
(305)
12
460
10
100
80
±
0.5
4-M5 Screw Holes
Base Mounting
Unit Rear View
440
±
0.5 (Mounting Pitch)
(Mounting Pitch)
<Mounting Hole Diagram> <Unit Mounted Diagram>

Table of Contents

Related product manuals