EasyManua.ls Logo

YASKAWA CACR-JU series - Page 98

YASKAWA CACR-JU series
340 pages
Print Icon
To Next Page IconTo Next Page
To Next Page IconTo Next Page
To Previous Page IconTo Previous Page
To Previous Page IconTo Previous Page
Loading...
5 Peripheral Devices
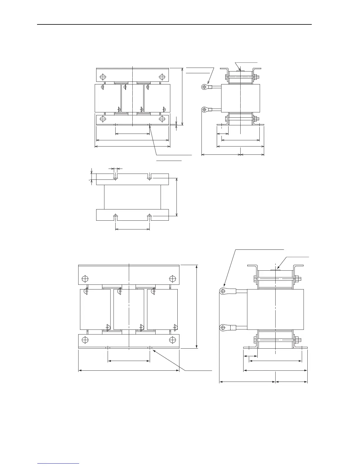
5.2.2 External Dimensions
5-8
(7) Model: X008011
(8) Model: X008012
U
X
V
Y
W
Z
125 ± 5
75
160
160 max.
7
75
13.5
85
85
25
105
90 max. 52
2.3
Nameplate
6-terminals for
M6 screws
4-mounting holes
for M6 bolts
Unit: mm
6-terminals for M6 bolts
4-mounting
holes for M6
bolts
Unit: mm
Nameplate
150 ± 5
75
180
25
105 max.
57
114
95

Table of Contents

Related product manuals