EasyManua.ls Logo

ABB FSO-21 - Safety data

ABB FSO-21
540 pages
Print Icon
To Next Page IconTo Next Page
To Next Page IconTo Next Page
To Previous Page IconTo Previous Page
To Previous Page IconTo Previous Page
Loading...
520 Technical data
Safety data
General
T
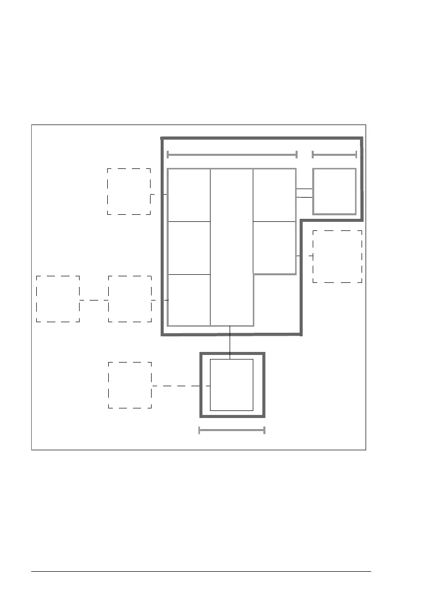
o determine the SIL/PL capability of the whole safety function where the FSO is
included, the failure rates (PFD
avg
/PFH) of all components implementing the safety
function (see the figure below) must be added.
FSO module with its subsystems. The FSO acts as the logic part in the safety
function. The safety data for the safety function where FSO and drive are used is
composed of the safety data of the subsystems. Safety data for different
subsystems is shown in section Basic safety data on page 522.
Digital inputs and outputs. Subsystems for the digital inputs and outputs of the
FSO. Can be used as single or dual channel and with or without diagnostic
pulses.
Digital
input
STO
output
Digital
output
Speed
measure-
ment
Drive
STO
Switch,
input
device
Logic
Additional
actuator,
eg. relay or
cascaded
FSO
FSO
PROFI-
SAFE
Speed
measure-
ment with
FSE-31
Safety
encoder,
Input
device
Safety
PLC
Input
devices
FSE

Table of Contents

Related product manuals