EasyManua.ls Logo

Bailey 40 Series - Keyboard Interface Assembly (IIOIC422 Model)

Default Icon
103 pages
Print Icon
To Next Page IconTo Next Page
To Next Page IconTo Next Page
To Previous Page IconTo Previous Page
To Previous Page IconTo Previous Page
Loading...
COMPONENT DESCRIPTION AND REPLACEMENT
OPERATOR INTERFACE DEVICES
6 - 18 I-E96-192-5A
®
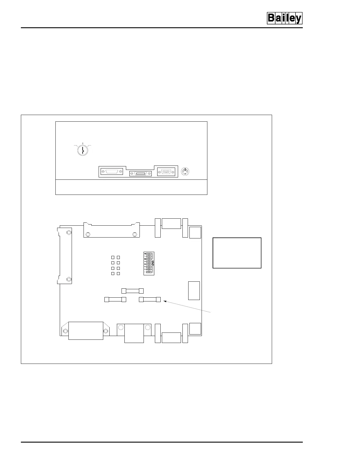
IIOIC424 panel mount consoles, the keyboard interface assem-
bly is below the monitor and above the CPU. Refer to Table 6-1
for part numbers. Refer to Section 7 when replacing fuses for
fuse part numbers.
The keyboard socket is for the operator keyboard supplied with
the OIC consoles (Figure 6-14). The AUX 1 port is for a table-
top annunciator display panel. The auxiliary keyboard connec-
tor is for an engineering keyboard. Connector P9 is not used.
Figure 6-14. Keyboard Interface Assembly (IIOIC422 Model)
MOUSE/
TRACKBALL
AUX 1
PORT
KEYBOARD
AUX
KBD
OFF
TUNE CONFIG
KEYBOARD INTERFACE ASSEMBLY FRONT VIEW
KEYBOARD INTERFACE ASSEMBLY CONNECTOR BOARD
TO P5 ON
MKM BOARD
P1
J2
1
VIO
BRN
BLK
2
BLU
RED
YEL
5V
GND
+12V
-12V
SW1
F2
F1 F3
J1
P3
KEYBOARD
AUX 1 PORT
AUX KBD
MOUSE/TRACKBALL
P4
P5
P6
P2
P8
ASSY 6638238-1
SW1 SWITCHES
5,6AND7ARE
CLOSED (ON)
TP P3 ON DC
DISTRIBUTION
BOARD. NOT USED ON
IIOIC421 OR IIOIC424.
F1, F2 AND F3
ARE 2-A, 250-V
FAST BLOW
TO P7 ON
MKM BOARD
AND TO P2 ON
ADP BOARD
P9
NOT USED
P10
TO MOUSE
PORT ON CPU
CAUTION: SWITCHES 5, 6
AND 7 ARE CLOSED (ON).
SWITCHES 1 THROUGH 4
AND 8 ARE OPEN (OFF). IF
THEY ARE NOT SET
CORRECTLY, DAMAGE TO
THECPUMAYRESULT.
TP80554A

Table of Contents