EasyManua.ls Logo

BENDIXKing KSN 8 Series - Page 161

BENDIXKing KSN 8 Series
228 pages
Print Icon
To Next Page IconTo Next Page
To Next Page IconTo Next Page
To Previous Page IconTo Previous Page
To Previous Page IconTo Previous Page
Loading...
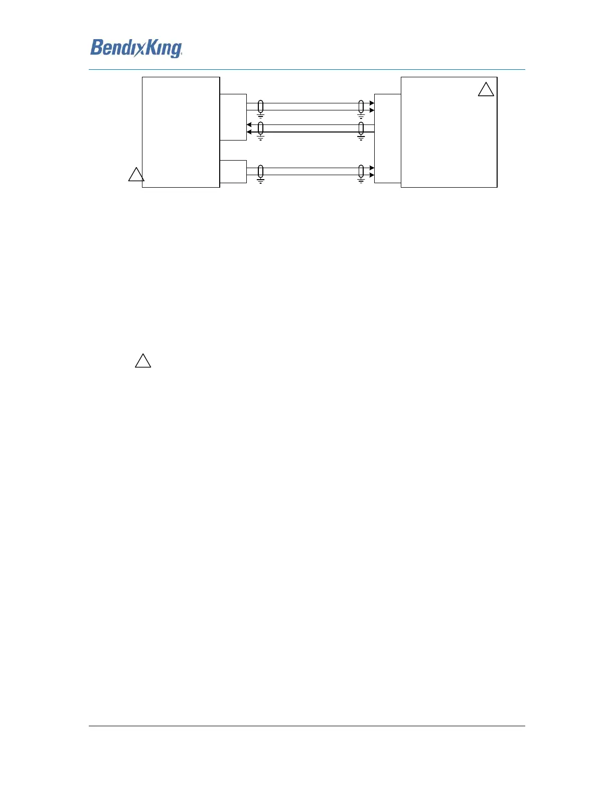
89000046-014 KSN 780/8XX/900 AeroNav AML STC Installation Manual for Helicopters
Rev 0 Page D-13
© Honeywell International Inc. Do not copy without express permission of Honeywell.
AERONAV XXX
P1001
46
47
48
49
24
23
GPS ARINC 429 OUT A
GPS ARINC 429 OUT B
GPS ARINC 429 IN 1A
GPS ARINC 429 IN 1B
VOR/ILS 429 O UT A
VOR/ILS 429 O UT B
P1006
SANDEL SN3500
P2
31/(2)
17/(32)
30
15
3/(35)
33/(21)
GPS ARINC 429 IN A
GPS ARINC 429 IN B
GPS ARINC 429 OUT A
GPS ARINC 429 OUT B
NAV ARINC 429 IN A
NAV ARINC 429 IN B
NOTES:
1. ALL WIRES TO BE 22 AWG OR GREATER UNLESS OTHERWISE NOTED.
2. AT AERONAV UNIT, TERMINATE SHIELD GROUNDS TO THE CONNECTOR
BACKSHELL OR USE CARD-EDGE CONNECTOR TO TERMINATE SHIELD GROUNDS
TO BACK PLATE THE SHIELD LEADS MUST BE LESS THAN 3.0 INCHES. CONNECT
OTHER SHIELD GROUNDS TO AIRCRAFT CHASSIS WITH AS SHORT A CONDUCTOR
AS PRACTICAL.
3. REFER TO MANUFACTURERS DOCUMENTATION FOR COMPLETE PINOUT
INFORMATION AND CONFIGURATION.
NOT APPLICABLE FOR AERONAV 880/780
3
4
4
Figure D - 8: Sandel SN3500 Interconnect

Table of Contents

Related product manuals