EasyManua.ls Logo

Böhnke + Partner bp308 - Impulse Diagrams of Absolute Encoder with Short Distance Landing

Böhnke + Partner bp308
154 pages
Print Icon
To Next Page IconTo Next Page
To Next Page IconTo Next Page
To Previous Page IconTo Previous Page
To Previous Page IconTo Previous Page
Loading...
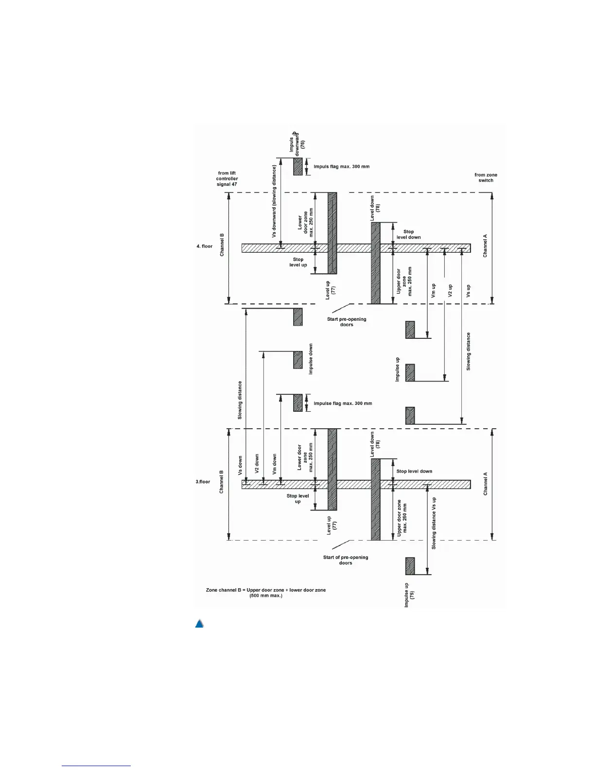
8.11.7 Impulse diagrams of Absolute Encoder with
Short Distance Landing
104 Installation Manual System »bp308« – Commissioning Instructions
Fig. 69
Pulse diagram 3, deceleration distances and flush-level area

Table of Contents