EasyManua.ls Logo

Canon PC920 - Scanning Lamp Control

Canon PC920
393 pages
Print Icon
To Next Page IconTo Next Page
To Next Page IconTo Next Page
To Previous Page IconTo Previous Page
To Previous Page IconTo Previous Page
Loading...
CHAPTER 3 EXPOSURE SYSTEM
COPYRIGHT
©
1999 CANON INC. CANON PC800s/900s REV.0 AUG. 1999 PRINTED IN JAPAN (IMPRIME AU JAPON)
3-9
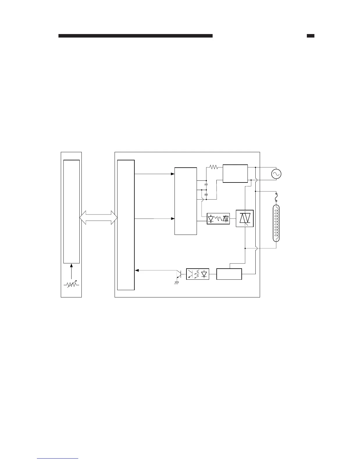
Figure 3-201
(Q101)
Serial
communication
VR107
DC controller PCB
Microprocessor
(Q900)
Intensity adjustment
signal
PWM_1KHz
Lamp activation
signal
LAMP_ON
Activation detection
signal
LAMP_DETECT
Composite power supply PCB
9
4
2
7
(HIC001)
Phase
control
circuit
Arcing circuit
Scanning lamp
(LA1)
Thermal fuse
(FU1)
Activation detection circuit
Rectifying
circuit
Microprocessor
Rectifying
circuit
+
-
+
-
II. EXPOSURE SYSTEM
A. Controlling the Scanning Lamp
1. Outline
Figure 3-201 shows the circuit used to control the scanning lamp, and has the following func-
tions:
Turning on/off the scanning lamp.
Controlling the intensity of the scanning lamp.
Monitoring the state (on/off) of the scanning lamp.

Table of Contents

Other manuals for Canon PC920

Related product manuals