EasyManua.ls Logo

CEA DIGITECH vision PULSE 3200 - Key to the Electrical Diagram

CEA DIGITECH vision PULSE 3200
80 pages
Print Icon
To Next Page IconTo Next Page
To Next Page IconTo Next Page
To Previous Page IconTo Previous Page
To Previous Page IconTo Previous Page
Loading...
11
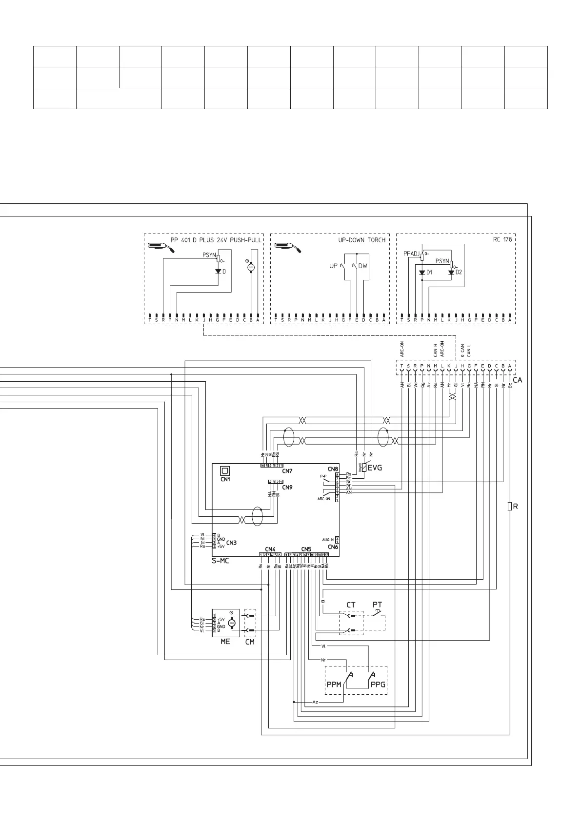
KEY TO THE ELECTRICAL DIAGRAM
•1 •2 •3 •4 •5 •6 •7 •8 •9 10 11 12
C C2 CA CHR CM Cp CT D2 EVG F-EMC IL L2
13 14 15 16 17 18 19 20 21 22 23 24
ME MIH MIL MV1-2 P1 P2 PPG PPM PT R R2 RP
25 26 27 28 29 30 31 32 33 34
RS S-INT DIG S-INV S-LINK S-MC S-PS TA TH2 TP VR
•1 Capacitor •2 SNUBBER capacitor for output diodes •3 17 pin connector for remote control connections •4 Cooling system power connector •5 Drive
motor connector •6 Quick connection protection capacitor •7 Torch connector •8 Secondary diode •9 Gas solenoid valve •10 EMC filter 11 Power supply
switch •12 Secondary inductor •13 Drive motor with encoder •14 Primary upper IGBT module •15 Lower primary IGBT module •16 Fan motor •17 Main
primary transformer (start) •18 Main primary transformer (end) •19 Gas testing button •20 Motor testing button •21 Torch button •22 Resistor •23 Output
diode snubber resistor •24 Primary rectifier •25 Secondary rectifier •26 Digital interface PCB •27 Inverter PCB •28 Capacitors PCB •29 Motor control PCB
•30 Power Source PCB •31 Hall effect transformer •32 Secondary thermostat •33 Main transformer •34 Output diodes snubber varistor
2101AA87

Related product manuals