EasyManua.ls Logo

CEFLA RX DC - INSTALLATION PROCEDURES; Unit Structure Positioning; Wall-Mounted Plate Installation

CEFLA RX DC
67 pages
Print Icon
To Next Page IconTo Next Page
To Next Page IconTo Next Page
To Previous Page IconTo Previous Page
To Previous Page IconTo Previous Page
Loading...
9
SCATOLA ALLACCIAMENTI
A
MURO
ASSE BRACCIO
RADIOGRAFIC
O
POSIZIONE FISSAGGI
A
MURO
INTERRUTT
OR
E
GENERAL
E
152.5
406.4
71.7
435
217.5 217.5
172
85.5
86.5
16
11
14.3
14.3
60
95
R 10
R 10
R 10
R 10
86
GB
INSTALLATION
RX DC X-RAY UNIT
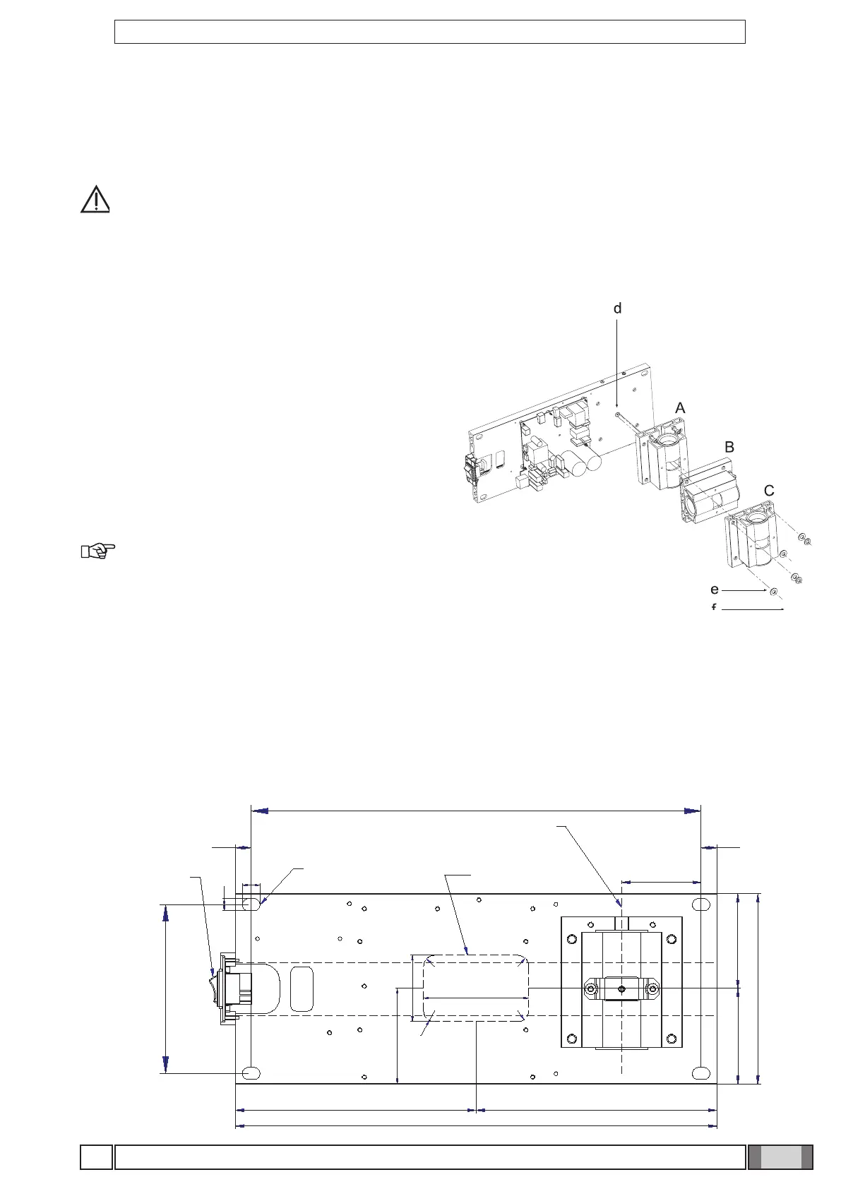
4. INSTALLATION
The x-ray unit must be installed by a qualied technician in compliance with the installation instructions given below as
regards both the mechanical and electrical parts.
WARNING!
Always check that the voltage indicated on the generators nameplate corresponds to that for the electrical
system.
Figure A
Figure POSITIONING
4.2 Wall-mounted plate for supporting the x-ray unit
Figure A
• Determine the position of the x-ray unit by using the INSTALLATION JIG.(accompanying documentation).
• First check that the plate is at the correct height and perfectly horizontal and then mark out the four points where it is to be
xed on the wall. Drill the holes and install the most suitable type of fastening system according to the characteristics of the
wall (see section "Mechanical specications required").
Pass the supply cable through one of the holes in the wall-mount plate and x this to the wall by partially tightening the
top and bottom screws.
MAIN
SWITCH
LOCATION
WALL
FIXING
AXLE
RADIOLOGIC
ARM
WALL BOX
CONNECTIONS
4.1 Positioning the x-ray unit’s structure
Figure POSITIONING
Block the middle clamp in the opening provided (d) according
to which of the three positions available the structure needs
to be placed in:
1) PRESET CONFIGURATION WITH WALL-MOUNTED
STRUCTURE SET HORIZONTALLY TO THE RIGHT.
2) WALL-MOUNTED STRUCTURE SET VERTICALLY
DOWNWARD.
3) WALL-MOUNTED STRUCTURE SET HORIZONTAL-
LY TO THE LEFT.
Secure the pin to the plate using the srews (f) and washers (e)
provided.
For detailed instructions on all installation
congurations watch the video on:
extranetmedical.cea.it

Table of Contents

Related product manuals