EasyManua.ls Logo

CEFLA RX DC - Ref. **P*****I

CEFLA RX DC
67 pages
Print Icon
To Next Page IconTo Next Page
To Next Page IconTo Next Page
To Previous Page IconTo Previous Page
To Previous Page IconTo Previous Page
Loading...
61
MOD. 410 rev. 2 del 20/10/04
REDATTO
DATA
FIRME E DATA
CODICE
FOGLIO
REV.
DISEGNO RISERVATO A NORMA DI LEGGE VIETATA LA RIPRODUZIONE E LA DIVULGAZIONE
APPROVATO
1
1
97040009
ALBERTAZZI
17/07/2017
1
2 3 4 5 6 7 8
C
B
A
D
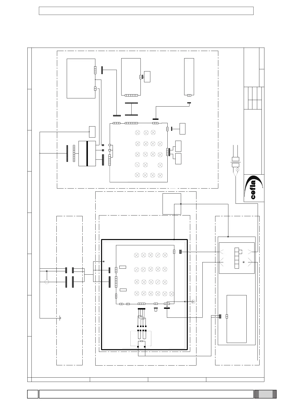
RXDC ELECTRIC WIRING DIAGRAM
BELLANOVA
CEFLA DENTALE - UFFICIO TECNICO, Via BICOCCA 14/C IMOLA (BO) ITALIA
2
3
1
K1
4
F_L
L_L
L_N
F_N
1
2
3
4
S_L
L_N
L_L
S_N
97522159
123456
RT+
AUX
RT--
GND
V+15
MONOBLOCK BOARD
12
P1
P2
1 2 34 56
K2
RT--
AUX
RT+
GND
V+15
KF2
12
K5
MICROSWITCH
1234
FIL_OUT
GND_FIL
VFB
IFB
SLIP-RING
97520708
97520692
97520757
P2
V+15
P1
AUX
GND
EARTH
RT+
RT--
123456789
123
P1
P2
KF1
2
3
1
K2
N
L
2
1
J1
97520691
(only for 115Vac)
12
K3
LAMP
LAMP
EARTH
97660511
J1
97660593
2
3
1
4
5
6
7
SENSORS BOARD
2
3
1
K4
4
5
6
7
V+15
GND
CAP_SDA
CAP_CLK
CONE_SW
HAND_SW1
HAND_SW2
V+15
GND
CAP_SDA
CAP_CLK
CONE_SW
HAND_SW1
HAND_SW2
97520699
2
1
K1
3
4
FL_OUT
GND_FIL
VFB
IFB
97520672
2
3
1
K10
2
1
K1
CAPACITORS BOARD
97660592
12
J2
97660605
SENSORS
97522161
HEAD HOLDER
99930944
97520886
PE
APPLIES TO REF:**P*****I
DI
1
EARTH
SHIELD
PE
EARTH +
SHIELD
H
PL
Power Relay
97726500
A
TS
58
0
24 AC
231
M1
LAMPADA
SCHEDA CASSETTA ALLACCIAMENTI
ANALOGICI 97660575
DIGITALI 97660576
24 Vac
97520888
97520890
97520887
97520886
LINEA
220-240 Vac / 50-60 Hz
A1
A2
MAIN INPUT
0 Vac
97520888
EARTH
PE
6
5
MOTORIDUTTORE
97212400
97520888
PE
97520366
CRX
45
MARRONE
GIALLO-VERDE
AZZURRO
VERDE
VERDE
LN
EARTH +
SHIELD
24 Vcc
1 A max
LINEA
220-240 Vac / 50-60 Hz
TERMINAL BLOCK RX DC
AZZURRO
VIOLA
GRIGIO
MARRONE
K5 K6
MAIN POWER BOARD
97661585
DL1=VAC
DL2=VDC
DL6=12V
DL5=3.3V
DL10=ERR
DL9=CPU
DL15=RDYL
DL8=CAN ACT
DL19=ILK
DL20=5V
DL18=CAN ERR
DL12=COMM
DL22=ENB
DL4=15V
DL16=VCC CAN
DL3=PC
DL7=ISO
DL11=LIN
DL17=TRIG
DL21=PWM
DL23=RUN
F2
8AT @ 230Vac
12AT @ 115Vac
F1
1,5AF
12
K6
34
ACTUATOR
THERMAL
97614700
97600114
SENSOR
DL1=15V
DL2=5V
DL3=3.3V
DL4=LIN
DL5=CONE
DL6=HSW1
DL7=HSW2 DL8=LNK
DL9=RUN
DL10=ERR
DL11=ACT_ON
DL14=W_OK
DL13=W_ERRDL12=HV_ON
DL15=PWM DL16=FIL DL17=W_OK
DL18=W_ERR
HEAD CONTROL BOARD
97661586
1
ALIM
1
2
K4
TRIG GER
TRIGGER
1
2
K18
INTERLOCK
INTERL OCK
23
ALIM
K15
COMM
GB
INSTALLATION
RX DC X-RAY UNIT
13.4 REF. **P*****I

Table of Contents

Related product manuals