EasyManua.ls Logo

CEFLA RX DC - Ref. **X*****S Ref. **E*****S

CEFLA RX DC
67 pages
Print Icon
To Next Page IconTo Next Page
To Next Page IconTo Next Page
To Previous Page IconTo Previous Page
To Previous Page IconTo Previous Page
Loading...
59
REDATTO
DATA
FIRME E DATA
CODICE
FOGLIO
REV.
DISEGNO RISERVATO A NORMA DI LEGGE VIETATA LA RIPRODUZIONE E LA DIVULGAZIONE
APPROVATO
1
1
9704007
ALBERTAZZI
06/03/2017
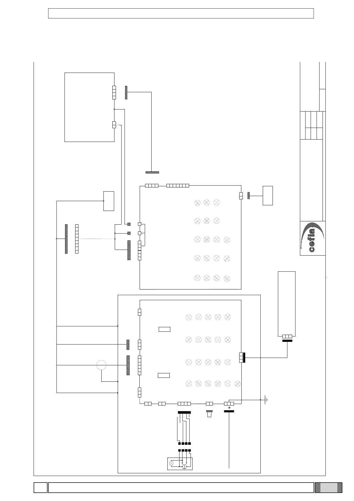
RXDC ELECTRIC WIRING DIAGRAM
BELLANOVA
2
3
1
K1
4
F_L
L_L
L_N
F_N
5
2
1
4
S_L
L_N
L_L
S_N
MAIN
97522159
1 2 34 5 6
K5
RT+
AUX
RT--
GND
V+15
MONOBLOCK BOARD
12
P1
P2
1 2 34 5 6
K2
RT--
AUX
RT+
GND
V+15
KF2
12
K5
MICROSWITCH
1234
FIL_OUT
GND_FIL
VFB
IFB
97520708
F2
F1
97600105
97520757
P2
V+15
P1
AUX
GND
EARTH
RT+
RT--
1 2 34 56 7 89
123
K6
P1
P2
KF1
HEAD CONTROL BOARD
97661586
LINE
110-220 Vac / 50-60 Hz
220-240 Vac / 50-60 Hz
2
3
1
K2
N
L
2
1
J1
97520691
(only for 115Vac)
12
K3
LAMP
LAMP
EARTH
97660511
2
3
1
K4
4
5
6
7
V+15
GND
CAP_SDA
CAP_CLK
CONE_SW
HAND_SW1
HAND_SW2
2
1
K1
3
4
FL_OUT
GND_FIL
VFB
IFB
97520672
99930923
HEAD HOLDER
99930944
EARTH
97520902
PE
PE
EARTH
8AT @ 230Vac
12AT @ 115Vac
1,5AF
APPLIES TO REF:**X*****S,**E*****S
SWITCH
DI
1
97520934
MAIN POWER BOARD
97661585
DL4=15VDL3=PC
DL2=VDC
DL1=VAC
DL7=ISO
DL6=12V
DL5=3.3V
DL8=CAN ACT
DL11=LIN
DL10=ERR
DL9=CPU
DL12=COMM
DL17=TRIG
DL16=VCC CAN
DL15=RDYL
DL18=CAN ERR
DL21=PWM
DL20=5V
DL19=ILK
DL22=ENB
DL23=RUN
DL1=15V DL2=5V DL3=3.3V DL4=LIN DL5=CONE
DL11=ACT_ON
DL12=HV_ON DL13=W_ERR
DL14=W_OK DL15=PWM
DL6=HSW1 DL7=HSW2 DL8=LNK DL9=RUN DL10=ERR
DL16=FIL DL17=W_OK DL18=W_ERR
123
K15
HANDHELD 97661761
2
3
1
HANDHELD VET 97661828
97522176
(Only for REF:**X*****CS,**E****CS)
1
ALIM
1
2
K4
TRIGGER
TRIGGER
1
2
K18
INTERLOCK
INTERLOCK
23
ALIM
K15
COMM
GB
INSTALLATION
RX DC X-RAY UNIT
13.2 REF. **X*****S REF. **E*****S

Table of Contents

Related product manuals