EasyManua.ls Logo

Deep Sea Electronics Plc DSE6120 MKII

Deep Sea Electronics Plc DSE6120 MKII
94 pages
To Next Page IconTo Next Page
To Next Page IconTo Next Page
To Previous Page IconTo Previous Page
To Previous Page IconTo Previous Page
Loading...
Installation
Page 35 of 94 057-236 ISSUE: 1
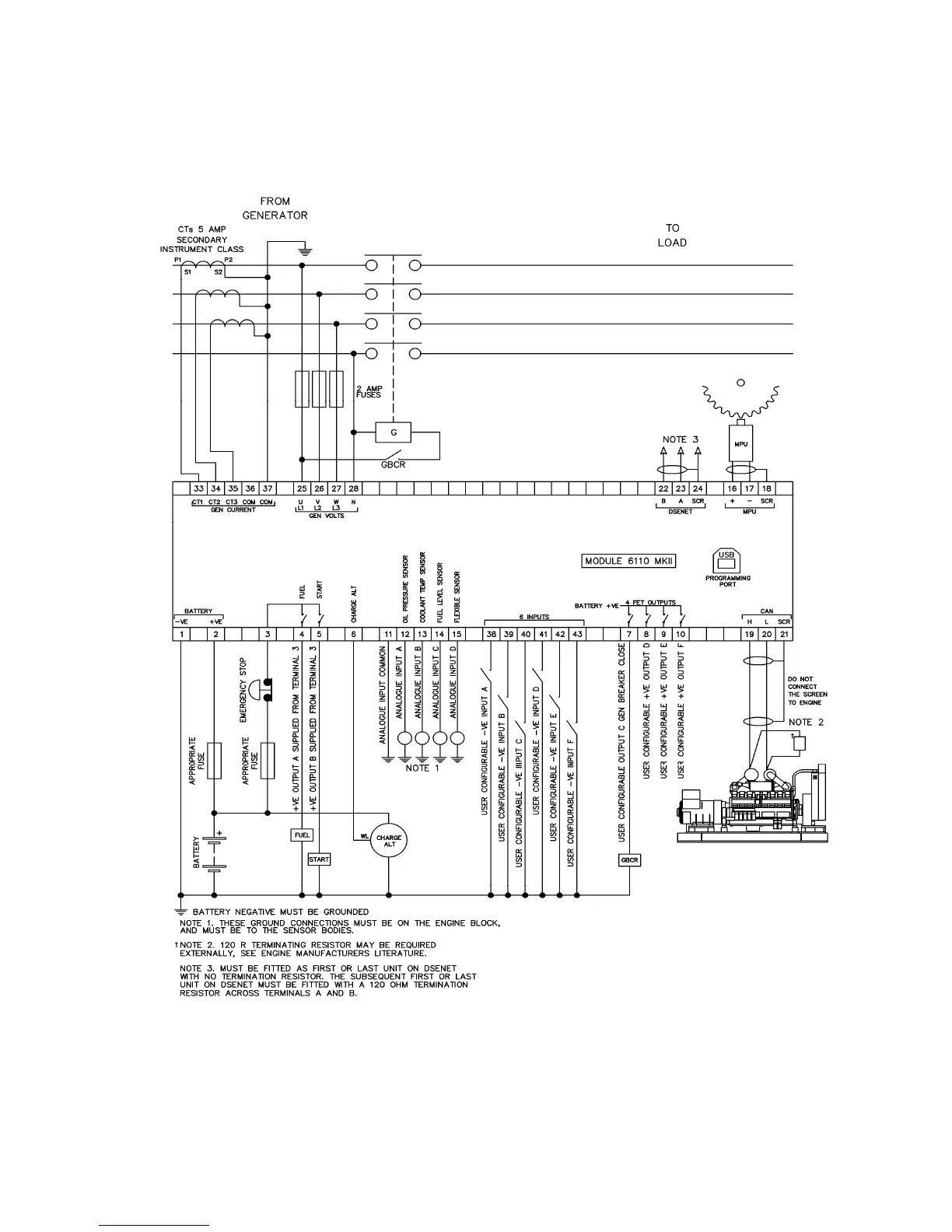
3.2.1 DSE6110 MKII TYPICAL WIRING DIAGRAM (3 PHASE 4 WIRE)

Table of Contents

Related product manuals