EasyManua.ls Logo

Enertech EAV060 - Diagram HTGCLG-3: Heating;Cooling - A-Coil with Fossil Furnace Backup (A-Coil Cooling or Heating & Cooling) Up to 5 Radiant Heating Zones

Default Icon
104 pages
Print Icon
To Next Page IconTo Next Page
To Next Page IconTo Next Page
To Previous Page IconTo Previous Page
To Previous Page IconTo Previous Page
Loading...
Enertech Global 
EAV - EME/EMD Rev. A Models
Installaon and Operaons Manual
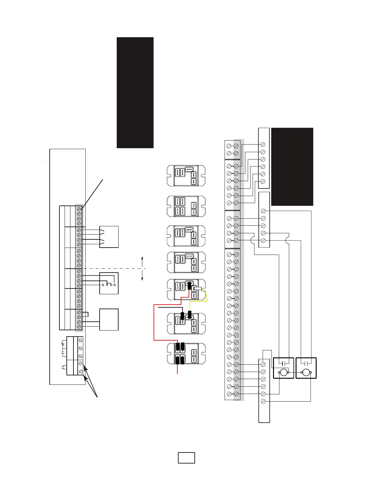
R G CY C R W C R W C R W C R W C R WO
------------ ZONE 1 ------------ ---- ZONE 2 ---- ---- ZONE 3 ---- ---- ZONE 4 ---- ---- ZONE 5 ---- ---- ZONE 6 ----
R Y G
FAN COIL
OC O Y1C Y1
WV HEAT PUMP
FAN COIL
ZONE VALVE
RELAY
FAN COIL/
RADIANT RELAY
TRANSFORMER A
FAN COIL
ISOLATION
RELAY 1
FAN COIL
ISOLATION
RELAY 2
COILCOIL
COIL
COIL
COIL
COM
COMCOM
NC
NO
NC
NC NC
NO
NC
NO
NO NO
FAN COIL/
RADIANT RELAY
TRANSFORMER B
COIL
COM
NC
NO
NO
NC
HEAT/COOL
RELAY
C
NO
NC
NC
NO
Y2C Y2
COIL
COM
1 2
Expansion
HI TEMP
RELAY
A**
A**
B**
B**
1 2 3 4
ZONE 1
1 2 3 4
ZONE 2
1 2 3 4
ZONE 3
1 2 3 4
ZONE 4
1 2 3 4
ZONE 5
1 2 3 4
ZONE 6
2 WIRE ZONE VALVE
(NO END SWITCH)
MUST USE JUMPER
TACO
3 WIRE
ZONE VALVE
1
2
3
JUMPER
3 & 4
MOTOR END
SWITCH
4 WIRE ZONE VALVE
(POWER OPEN,
SELF CLOSING)
ZVC 406 – 4
ZONE VALVE CONTROL
N/O
COM
N/C
PUMP END
SWITCH
ZONE 6 PUMP
END SWITCH
24 VAC ZONE VALVES PRIORITY
X X
Powered from Transformer A Powered from Transformer B
Wiring from this terminal strip to the relays and Taco zone controller not shown in this diagram.
Thermostat wiring**
Field wiring is shown
as gray shaded areas
(high voltage wiring
not shown)
4
Use these terminals
to enable system
pump (see piping
diagrams).*
*These contacts will close with a call from
any thermostat. For constant speed pump,
use these contacts to power the pump
when there is a htg/clg call (break the “L
terminal for a 115V pump). For variable
speed pump, use these contacts to enable
the pump (typically a contact closure will
tell” the pump to start modulating).
R G CYO
W
C WGY
R
Dual Fuel
Heat Pump
Thermostat
Furnace
**This panel is wired from the factory as a cooling only fan coil for zone 1. If heating and cooling is desired for the zone 1 A-coil, make
the following changes:
1. Remove the two red wires labeled A at the rst relay on the left. Using a quick-connect junction, plug the two red wires together.
2. Remove the black wire and the yellow wire from the second relay from the left (labeled B). Using a quick-connect junction, plug
the two wires (one black and one yellow) together.
Secon 8: Field Wiring
Diagram HTGCLG-3:
Heang/Cooling A-Coil
with Fossil Furnace Backup
(A-Coil Cooling or Heang &
Cooling) Up to 5 Radiant
Heang Zones
CAUTION
A-COIL MUST BE 2 TONS OR LARGER FOR THIS
APPLICATION. IF A-COIL IS SMALLER THAN 2
TONS, A BUFFER TANK IS REQUIRED (USE
DIAGRAM HTGCLG-7 AND FIGURE 16C).
HHEATHEAT
COOL
EM
indoor
Module
7 8 9 1011 12
NOTICE
THE EM UNIT TERMINALS ARE
POLARITY SENSITIVE. TERMINALS
7,9, & 11 ARE COMMON. ENSURE
THAT OC, Y1C, AND Y2C ARE
CONNECTED TO COMMON.




Table of Contents

Related product manuals