EasyManua.ls Logo

Enotec COMTEC 6000 - C.2 Mounting Plates of 19 Rack SME-57

Enotec COMTEC 6000
67 pages
Print Icon
To Next Page IconTo Next Page
To Next Page IconTo Next Page
To Previous Page IconTo Previous Page
To Previous Page IconTo Previous Page
Loading...
Installation and Operation Manual - COMTEC
®
6000 Spare Parts
Doc.-ID: COM6000_11022020_EN 63
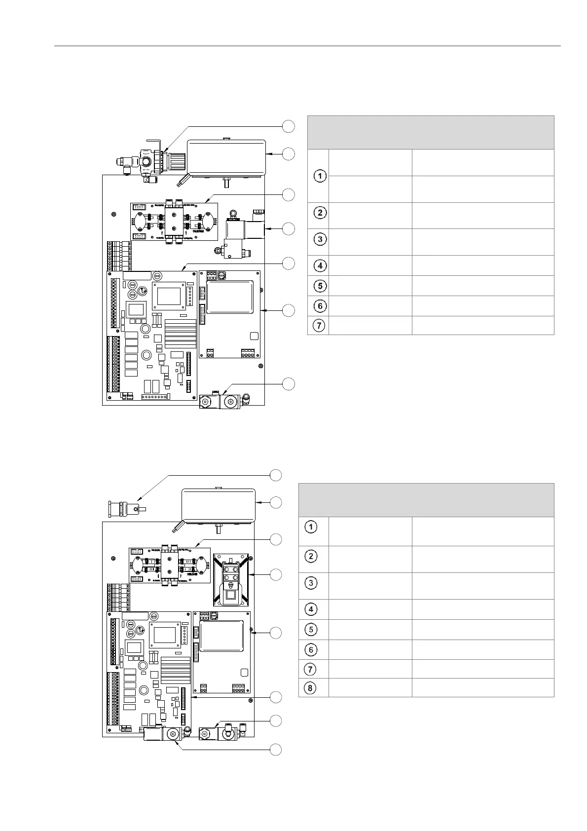
C.2 Mounting Plates of 19" Rack SME-57
Mounting Plate
instrument air, version A and version 1
0-P-000780 Pressure regulator with two
chokes Version 1
0-P-001369 Pressure regulator with one
choke Version A
TRA-00017 Toroid transformer
2x115V;sec.115V/330VA
DFM-0001 Internal flow meter for reference
air and test gas SME5
PGM-0001 Solenoid valve for test gas P01
0-L-000080 Power board
0-L-000100 CO
e
sensor board
PGM-0002 Solenoid valve for test gas P02
Figure 59 - Mounting plate (with instrument air, Version A
and Version 1)
Mounting Plate
with pump
PLF-0001
PLF-0002
Test air / ref. air filter
Spare filter element
TRA-00017 Toroid transformer
2x115V;sec.115V/330VA
DFM-0001 Internal flow meter for reference
air and test gas SME5
PLU-0025 Reference air pump
0-L-000100 CO
e
sensor board
0-L-000080 Power board
PGM-0001 Solenoid valve for test gas P01
PGM-0002 Solenoid valve for test gas P02
Figure 60 - Mounting plate (with pump)
1
3
5
4
6
2
7
1
3
4
5
2
7
6
8

Table of Contents

Related product manuals